Дом, Ермолово, 1 Показать на карте
Ермолово
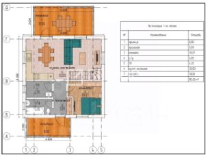
Просторный дом 250 м² на участке 10 соток в Ермолово!Продается современный дом общей площадью 250 м² на ровном, благоустроенном участке 10 соток. Идеальный вариант для семьи, которая ищет комфорт, пространство и тишину вблизи города. Дом построен качественно, с соблюдением всех строительных норм, полностью готов к проживанию.Основные характеристики:• Площадь дома: 250 м² (2 этажа)• Участок: 10 соток, ровный• Планировка: [X] комнат, из них [X] спален, гостиная, кухня-столовая, кабинет• Санузлов: [X] (в т.ч. [X] на втором этаже)• Материал стен: кирпич• Кровля: [металлочерепица / мягкая кровля / фальц]• Год постройки: 2025• Отделка: чистовая • Коммуникации: газ [в доме / по границе], электричество [15/30] кВт, вода [скважина, канализация [септик / центральная], интернет [оптика / 4G]• Отопление: [газовый котёл + тёплые полы / радиаторы / тепловой насос]Преимущества:• Продуманная планировка: много естественного света, удобная лестница, высокие потолки [X] м• Энергоэффективные окна, качественная шумо- и теплоизоляция• Тихое, экологичное место, при этом до города всего [X] мин на авто• Все документы в порядке, объект подходит под ипотеку, материнский капитал и военную ипотекуИнфраструктура и локация:В шаговой доступности: школа, детский сад, продуктовые магазины, аптека, остановка общественного транспорта. В радиусе [X] км: торговые центры, поликлиника, спортивные площадки, парковые зоны. Дороги зимой чистят регулярно.ЗВОНИТЕ, показ в любое удобное для Вас время!!!Каждому клиенту мы гарантируем полное юридическое сопровождение. Код пользователя: 199737Номер в базе: 12756183
250 м2
2 этажа
- Показать контакты
- Добавить в избранное
250 м2
2 этажа
10 500 000
42 000 /м2
