Если цена в объявлении изменится, мы сразу сообщим вам об этом на электронную почту.
Нажимая «Подписаться», вы соглашаетесь с правилами.
продам 2-к квартира8 780 640 ₽
2 апр 2025
Дата публикации объявления
Обн. сегодня
Дата обновления объявления
2
Количество просмотров (+ просмотры за сегодня)
Спецпредложение
Турбо x8
132 000 ₽/м²
Чистая продажа
Термин "Чистая продажа" означает, что в квартире никто не прописан или
есть куда выписаться и вывезти вещи. Это лучший вариант для покупателя.
Вероятность срыва сделки минимальна.
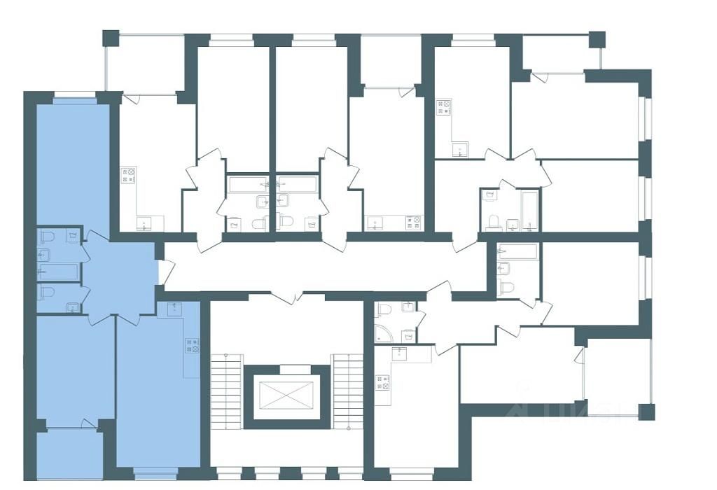
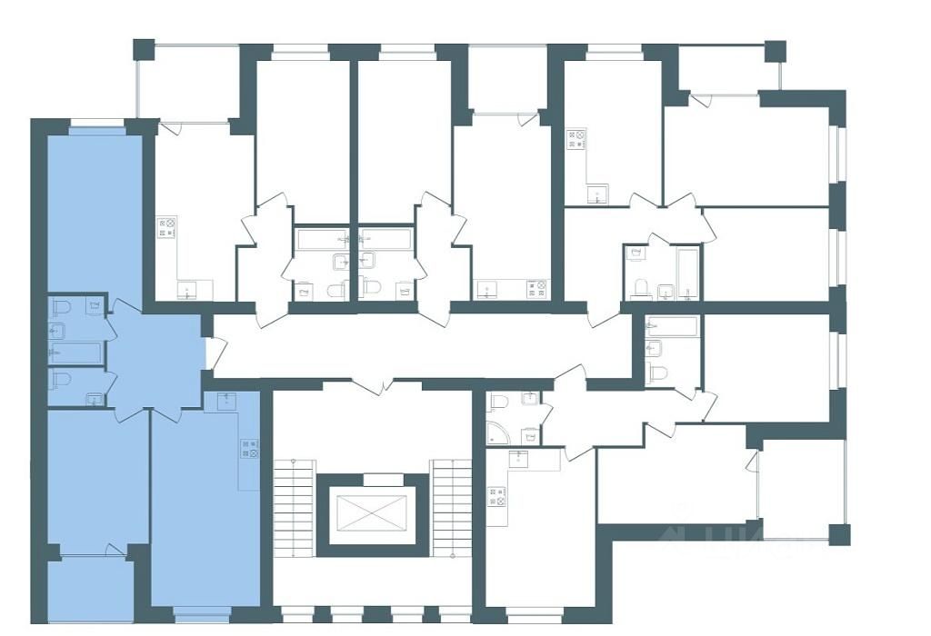
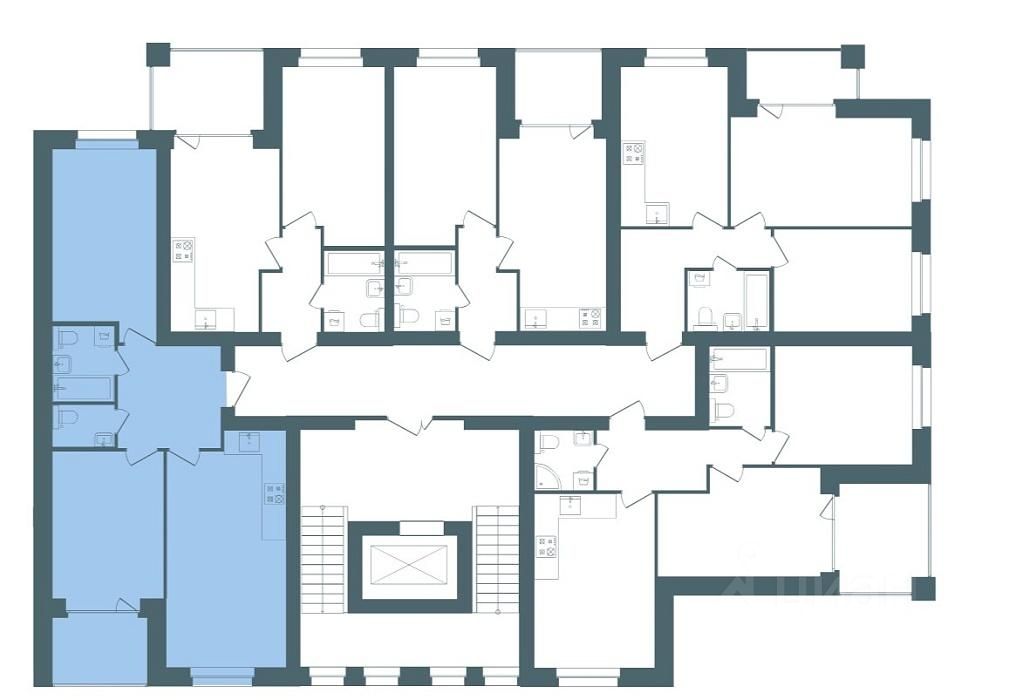
Квартира
Общая площадь66,52 м2
Жилая площадь28,2 м2
Кухня21,9 м2
Количество лоджий1
Тип собственностидоговор долевого участия
Дом
Срок сдачи1 кв. 2027 г.
Этаж2 из 16
Материал домакирпич
Двухкомнатная квартира площадью 66,52 кв.м. с просторной кухней-гостиной с окнами на две стороны в новом квартале бизнес-класса из кирпича. Доступна к покупке по госпрограммам и по программе беспроцентной рассрочки от застройщика. Квартал находится в 5 минутах ходьбы до Павловского парка и набережной Волги.
О квартире
Пространство квартиры с оптимальным зонированием. Спальня 13,17 м² выходит на панорамную лоджию. Квартира подходит для большой семьи или для тех, кто хочет иметь комфортный кабинет для удалённой работы.
Отделка: white-box (готовность под чистовую отделку: стены оштукатурены, полы стяжка, коммуникации подведены), по желанию клиента можем сдать в чистовой отделке (за дополнительную стоимость).
Двухкомнатная квартира площадью 66,52 кв.м. с просторной кухней-гостиной с окнами на две стороны в новом квартале бизнес-класса из кирпича. Доступна к покупке по госпрограммам и по программе беспроцентной рассрочки от застройщика. Квартал находится в 5 минутах ходьбы до Павловского парка и набережной Волги.
О квартире
Пространство квартиры с оптимальным зонированием. Спальня 13,17 м² выходит на панорамную лоджию. Квартира подходит для большой семьи или для тех, кто хочет иметь комфортный кабинет для удалённой работы.
Отделка: white-box (готовность под чистовую отделку: стены оштукатурены, полы стяжка, коммуникации подведены), по желанию клиента можем сдать в чистовой отделке (за дополнительную стоимость).
О квартале
Тихий двор без машин, охрана и видеонаблюдение.
Автономное крышное газовое отопление (регулируется из квартиры), фитнес-клуб с бассейном и спа прямо в доме.
Развитая инфраструктура района:
рядом школы, детсады, поликлиники.
Срок сдачи дома: 1 квартал 2027 года.
— Ипотека от 4%
— Рассрочка от застройщика (первый взнос 30%, без процентов).
Звоните и записывайтесь на экскурсию — покажем квартиру, всё покажем и расскажем!