Если цена в объявлении изменится, мы сразу сообщим вам об этом на электронную почту.
Нажимая «Подписаться», вы соглашаетесь с правилами.
продам дом, Красный Бор, 2120 500 000 ₽
8 июля 2025
Дата публикации объявления
Обн. сегодня
Дата обновления объявления
8
Количество просмотров (+ просмотры за сегодня)
Топ
98 700 ₽/м²
Чистая продажа
Термин "Чистая продажа" означает, что в квартире никто не прописан или
есть куда выписаться и вывезти вещи. Это лучший вариант для покупателя.
Вероятность срыва сделки минимальна.
Этажей2
Площадь участка5,12 соток
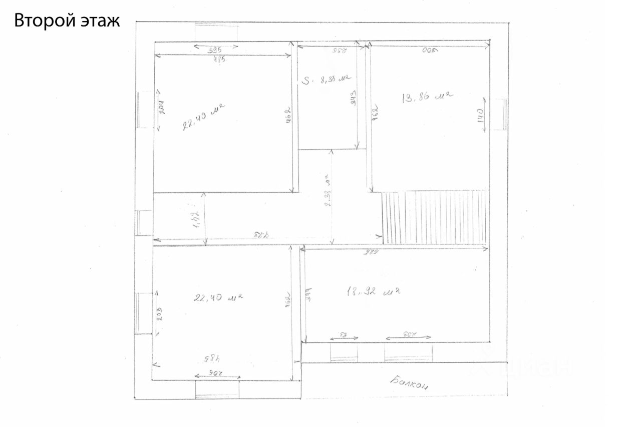
Общая площадь207,7 м2
Материал домакирпич
ЭлектричествоЕсть
Газоснабжениецентральное
2-этажный дом в пос. Красный Бор за ''Глобусом'' на участке 5,12 сот. Дом кирпичный 2017 года постройки, два этажа, чердак, подвал, терраса и балкон. Фундамент из монолитных плит, крыша из металлочерепицы, трехкамерные стеклопакеты. Вода из скважины, отопление газовое, электричество 15кВТ, канализация - два бетонных колодца. Удобный подъезд с нескольких сторон. Состояние очень хорошее. В доме 5 спален, кухня-гостиная 52 кв.м., гардеробная, два санузла, открытая терраса и застекленный балкон. В подвале оборудованная котельная и мастерская. Высота потолка на чердаке 2,4 м. Подвал и чердак в общую площадь не входят. На участке ели, туи и розы. Есть место для нескольких автомобилей. Усиленный забор позволяет спокойно выпускать собак во двор. Хорошие ворота.
2-этажный дом в пос. Красный Бор за ''Глобусом'' на участке 5,12 сот. Дом кирпичный 2017 года постройки, два этажа, чердак, подвал, терраса и балкон. Фундамент из монолитных плит, крыша из металлочерепицы, трехкамерные стеклопакеты. Вода из скважины, отопление газовое, электричество 15кВТ, канализация - два бетонных колодца. Удобный подъезд с нескольких сторон. Состояние очень хорошее. В доме 5 спален, кухня-гостиная 52 кв.м., гардеробная, два санузла, открытая терраса и застекленный балкон. В подвале оборудованная котельная и мастерская. Высота потолка на чердаке 2,4 м. Подвал и чердак в общую площадь не входят. На участке ели, туи и розы. Есть место для нескольких автомобилей. Усиленный забор позволяет спокойно выпускать собак во двор. Хорошие ворота. Чистая продажа, один взрослый собственник, без обременений, быстрый выход на сделку.