Если цена в объявлении изменится, мы сразу сообщим вам об этом на электронную почту.
Нажимая «Подписаться», вы соглашаетесь с правилами.
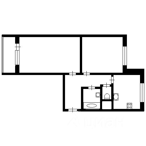
продам 2-к, Малая Техническая, 10 корп. 26 000 000 ₽
9 июля
Дата публикации объявления
Обн. вчера
Дата обновления объявления
12
Количество просмотров (+ просмотры за сегодня)
103 448 ₽/м²
Чистая продажа
Термин "Чистая продажа" означает, что в квартире никто не прописан или
есть куда выписаться и вывезти вещи. Это лучший вариант для покупателя.
Вероятность срыва сделки минимальна.
Представляем вашему вниманию прекрасную двухкомнатную квартиру на третьем этаже девятиэтажного дома. Общая площадь квартиры составляет 58 квадратных метров, а площадь кухни - 9 квадратных метров. Это идеальное жильё для тех, кто ценит комфорт и уют. Просторные комнаты наполнены уютом и теплом, а кирпичный дом обеспечивает отличную тепло- и звукоизоляцию. Чистый подъезд и ухоженная придомовая территория создают приятное впечатление с первого взгляда. Во дворе много зелени, что создаёт атмосферу спокойствия и гармонии. Для детей оборудована игровая площадка, а любители спорта оценят наличие спортивной площадки. Рядом с домом находятся магазины ''Магнит'' и ''Пятёрочка'', а также пункты выдачи заказов WB и OZON.
Представляем вашему вниманию прекрасную двухкомнатную квартиру на третьем этаже девятиэтажного дома. Общая площадь квартиры составляет 58 квадратных метров, а площадь кухни - 9 квадратных метров. Это идеальное жильё для тех, кто ценит комфорт и уют. Просторные комнаты наполнены уютом и теплом, а кирпичный дом обеспечивает отличную тепло- и звукоизоляцию. Чистый подъезд и ухоженная придомовая территория создают приятное впечатление с первого взгляда. Во дворе много зелени, что создаёт атмосферу спокойствия и гармонии. Для детей оборудована игровая площадка, а любители спорта оценят наличие спортивной площадки. Рядом с домом находятся магазины ''Магнит'' и ''Пятёрочка'', а также пункты выдачи заказов WB и OZON. В шаговой доступности остановки общественного транспорта, больница, детский сад и школа 88 - всё, что нужно для комфортной жизни. Особенностью этой квартиры является то, что мебель и техника остаются новым владельцам, что позволит сразу же заселиться и наслаждаться новым жильём без дополнительных хлопот. Это отличная возможность стать обладателем уютного жилья в хорошем районе! id:49204. - Безопасность - Лучшие юристы окажут полное сопровождение на всех этапах купли/продажи - Качество и Профессионализм. Наши специалисты признаны лучшими по уровню сервиса порталов. - Надежность и экономия. Мы являемся ключевыми партнерами всех ведущих банков. Личный ипотечный брокер выберет для Вас оптимальную программу ипотеки. - Прозрачность. Фиксированное агентское вознаграждение. Оплата только после совершения сделки. - Комфорт. Весь комплекс услуг купли/продажи. Формат ''одного окна'' в одном офисе в центре города - Уверенность. Мы входим в ТОП- 25 ведущих агентств недвижимости РФ по версии рекламных площадок.