Если цена в объявлении изменится, мы сразу сообщим вам об этом на электронную почту.
Нажимая «Подписаться», вы соглашаетесь с правилами.
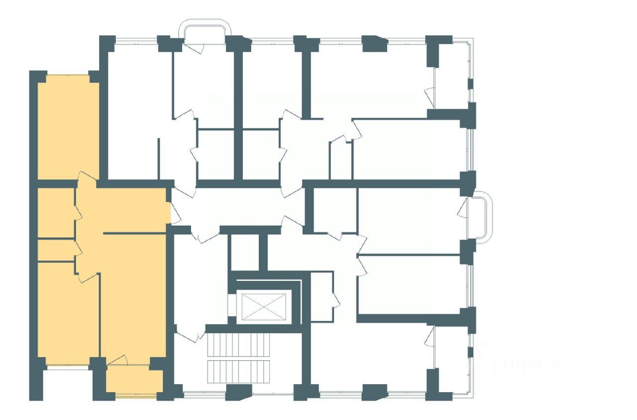
продам 2-к, Университетская8 746 180 ₽
17 дек
Дата публикации объявления
Обн. 28 апр
Дата обновления объявления
Спецпредложение
Турбо x8
134 000 ₽/м²
Чистая продажа
Термин "Чистая продажа" означает, что в квартире никто не прописан или
есть куда выписаться и вывезти вещи. Это лучший вариант для покупателя.
Вероятность срыва сделки минимальна.
Квартира
Общая площадь65,27 м2
Жилая площадь26,6 м2
Кухня21,8 м2
Количество лоджий1
Тип собственностидоговор долевого участия
Дом
Срок сдачи1 кв. 2028 г.
Этаж7 из 10
Материал домакирпич
Продаётся 2-комнатная квартира в строящемся доме (Стр.1 этап 1), срок сдачи: I-кв. 2028, общей площадью 65.27 кв.м., на 7 этаже. Новый центр Заволжского района. Квартал расположен на пересечении улиц Университетская и Маяковского. В окружении зелени в самом чистом районе города. Свежий речной воздух, вид из окон на центр города, стрелку и Успенский собор. В 600 метрах набережная Волги, белоснежные яхты и песчаные пляжи. До центра 1015 минут. До Глобуса 8 минут по новой дороге. Тверицы - это баланс между ритмом жизни большого города и отдыхом на природе. Вы всегда в центре событий, в окружении развитой инфраструктуры квартала. Магазины, салоны красоты и кафе расположены на первых этажах корпусов, а школа, два детских сада, фитнес-клуб в двух шагах от дома.
Продаётся 2-комнатная квартира в строящемся доме (Стр.1 этап 1), срок сдачи: I-кв. 2028, общей площадью 65.27 кв.м., на 7 этаже. Новый центр Заволжского района. Квартал расположен на пересечении улиц Университетская и Маяковского. В окружении зелени в самом чистом районе города. Свежий речной воздух, вид из окон на центр города, стрелку и Успенский собор. В 600 метрах набережная Волги, белоснежные яхты и песчаные пляжи. До центра 1015 минут. До Глобуса 8 минут по новой дороге. Тверицы - это баланс между ритмом жизни большого города и отдыхом на природе. Вы всегда в центре событий, в окружении развитой инфраструктуры квартала. Магазины, салоны красоты и кафе расположены на первых этажах корпусов, а школа, два детских сада, фитнес-клуб в двух шагах от дома. Вы устраиваете пикники на набережной Волги, выходите на воду на катере или сап-борде, прогуливаетесь по песчаной косе или отправляетесь на прогулку в сосновый бор. Хорошая экология, много зелени, транспортная доступность - основные преимущества, которые отмечают жители Заволжского района. На первых этажах - кофейни и уютные магазинчики. Просторные парковки и подземные паркинги. Дворы без машин, с детскими и спортивными площадками. Новый мост, строительство которого запланировано на 20272028 гг., станет следующим витком развития района.