Если цена в объявлении изменится, мы сразу сообщим вам об этом на электронную почту.
Нажимая «Подписаться», вы соглашаетесь с правилами.
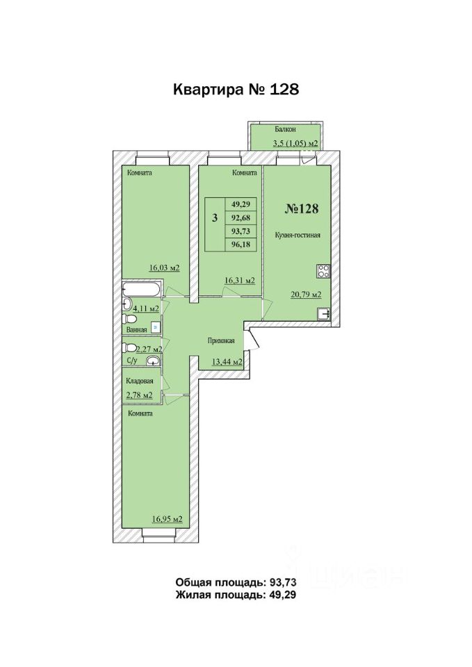
продам 3-к квартира8 633 160 ₽
12 янв
Дата публикации объявления
Обн. 11 мая
Дата обновления объявления
Спецпредложение
Турбо x8
92 107 ₽/м²
Чистая продажа
Термин "Чистая продажа" означает, что в квартире никто не прописан или
есть куда выписаться и вывезти вещи. Это лучший вариант для покупателя.
Вероятность срыва сделки минимальна.
Квартира
Общая площадь93,73 м2
Тип собственностидоговор долевого участия
Дом
Срок сдачи4 кв. 2026 г.
Этаж4 из 8
Материал домакирпич
Продаётся 3-комнатная квартира в строящемся доме (Строение 1 (2 этап)), срок сдачи: IV-кв. 2026, общей площадью 93.73 кв.м., на 4 этаже.