Если цена в объявлении изменится, мы сразу сообщим вам об этом на электронную почту.
Нажимая «Подписаться», вы соглашаетесь с правилами.
продам 1-к квартира5 445 360 ₽
12 янв
Дата публикации объявления
Обн. сегодня
Дата обновления объявления
Спецпредложение
Турбо x8
112 206 ₽/м²
Чистая продажа
Термин "Чистая продажа" означает, что в квартире никто не прописан или
есть куда выписаться и вывезти вещи. Это лучший вариант для покупателя.
Вероятность срыва сделки минимальна.
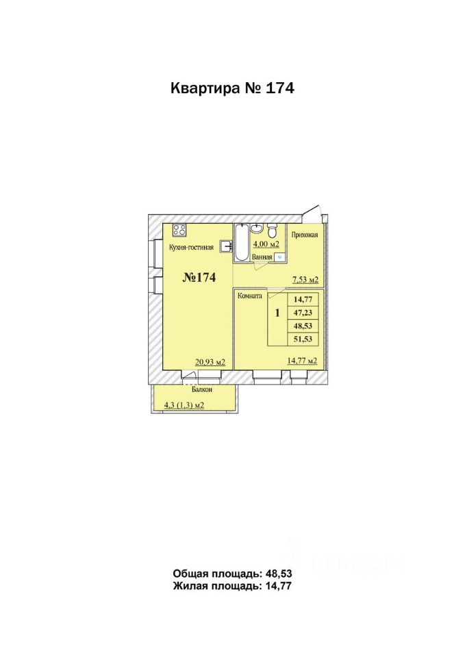
Квартира
Общая площадь48,53 м2
Тип собственностидоговор долевого участия
Дом
Срок сдачи4 кв. 2026 г.
Этаж2 из 8
Материал домакирпич
Продаётся 1-комнатная квартира в строящемся доме (Строение 1 (2 этап)), срок сдачи: IV-кв. 2026, общей площадью 48.53 кв.м., на 2 этаже.