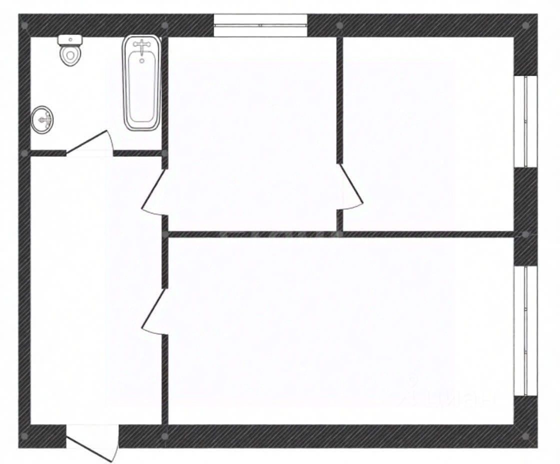
Продаётся 2-х комнатная квартира по адресу: г.Гаврилов-Ям,ул.Северная д.12. -Общая площадь 40.8 м.кв. -Расположена на первом этаже, не угловая,тёплая,светлая,сухая. -Индивидуальное отопление.Напольный котел и газовая колонка -Окна ПВХ. -Сан.узел совмещен,установлены счётчики на воду. -Входная дверь домофон. -Дом кирпичный. -Хороший,чистый подъезд. - Крыша после кап ремонта -Во дворе детская площадка. -В шаговой доступности поликлиника, школы,дет сады,гипермаркеты.
Код пользователя: 210049
Номер в базе: 10859555












