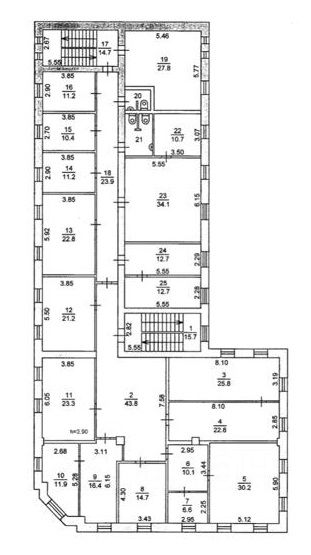
Продаются нежилые помещения общей площадью 750 кв.м. расположенные в двухэтажном кирпичном здании 1996 года постройки.
Административное здание расположено по адресу: Ярославская область, пос. Борисоглебский, ул.Транспортная, д.3
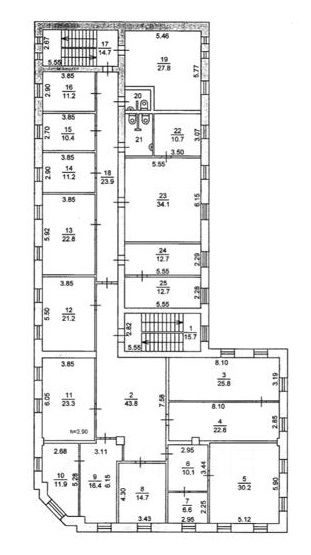
Помещения первого этажа - 41,1 кв.м. (теплоузел, входная группа, электрощитовая), 246,5 кв.м. (сданы в аренду ПАО ''Сбербанк'', страховой компании)
Помещения второго этажа - 443,3 кв.м. (частично сданы в аренду)
Гараж общей площадью - 22,9 кв.м. (не используется)
Здание кирпичное, на железобетонном фундаменте, перекрытия - бетонные, кровля - железная, оконные проемы - ПВХ и деревянные. Отопление - автономное от газового котла. Водоснабжение - центральное. Канализация - местная. Электрическая мощность - 90 кВт.
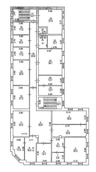
Продаются нежилые помещения общей площадью 750 кв.м. расположенные в двухэтажном кирпичном здании 1996 года постройки.
Административное здание расположено по адресу: Ярославская область, пос. Борисоглебский, ул.Транспортная, д.3
Помещения первого этажа - 41,1 кв.м. (теплоузел, входная группа, электрощитовая), 246,5 кв.м. (сданы в аренду ПАО ''Сбербанк'', страховой компании)
Помещения второго этажа - 443,3 кв.м. (частично сданы в аренду)
Гараж общей площадью - 22,9 кв.м. (не используется)
Здание кирпичное, на железобетонном фундаменте, перекрытия - бетонные, кровля - железная, оконные проемы - ПВХ и деревянные. Отопление - автономное от газового котла. Водоснабжение - центральное. Канализация - местная. Электрическая мощность - 90 кВт.
Рассмотрим варианты обмена.
На дополнительные вопросы отвечу по телефону.