Если цена в объявлении изменится, мы сразу сообщим вам об этом на электронную почту.
Нажимая «Подписаться», вы соглашаетесь с правилами.
продам 1-к квартира4 844 280 ₽
27 янв
Дата публикации объявления
Обн. 11 мая
Дата обновления объявления
4
Количество просмотров (+ просмотры за сегодня)
Спецпредложение
Турбо x8
102 200 ₽/м²
Чистая продажа
Термин "Чистая продажа" означает, что в квартире никто не прописан или
есть куда выписаться и вывезти вещи. Это лучший вариант для покупателя.
Вероятность срыва сделки минимальна.
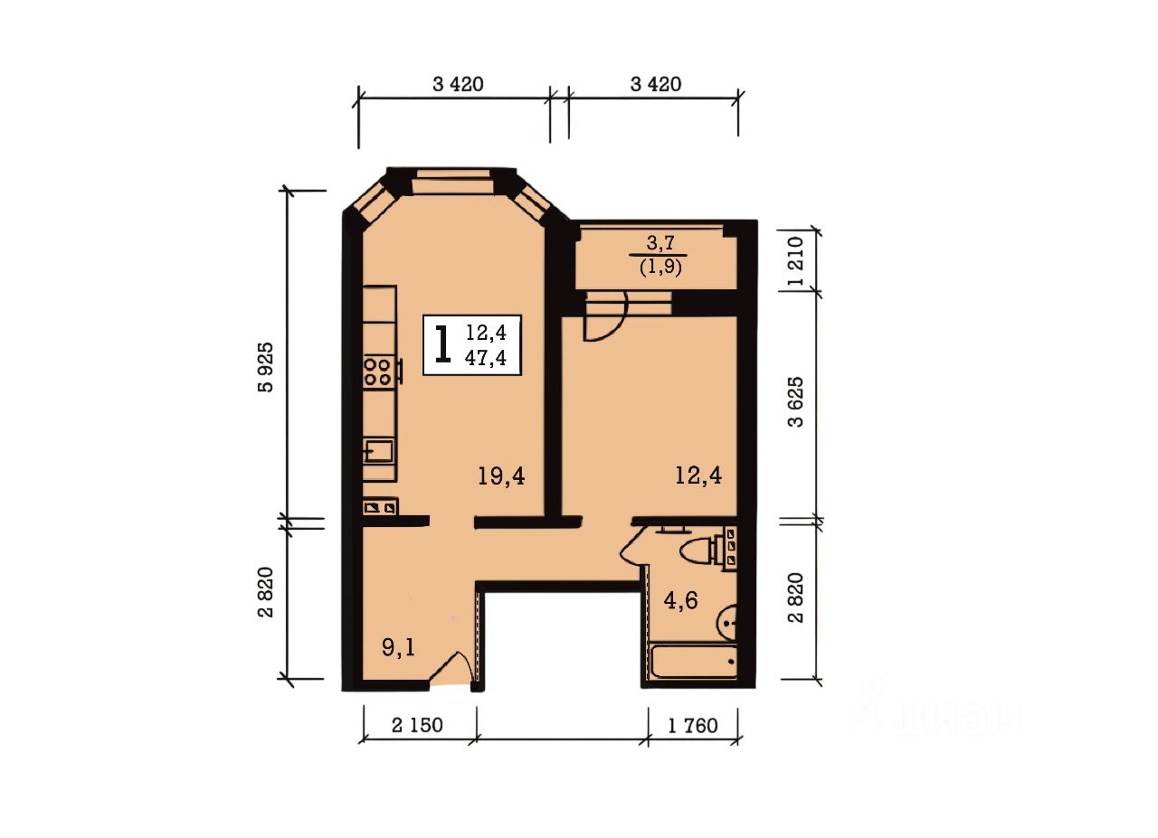
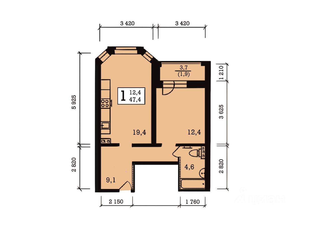
Квартира
Общая площадь47,4 м2
Жилая площадь19,6 м2
Тип собственностидоговор долевого участия
Дом
Срок сдачи3 кв. 2028 г.
Этаж2 из 10
Материал домакирпич
Продаётся 1-комнатная квартира в строящемся доме (Строение 3), срок сдачи: III-кв. 2028, общей площадью 47.4 кв.м., на 2 этаже. ЖК ''Полёт'' расположен в новом, стремительно развивающемся микрорайоне ''Сокол'' с хорошей транспортной и развитой социальной инфраструктурой в 5-минутной пешей доступности от проспекта Фрунзе. В пешей доступности находятся: 4 детских сада, 1 школа, супермаркеты ''Адмирал'' и ''Пятерочка'', ТЦ ''Фреш'', гипермаркет ''Metro Cash and Carry'', ТД ''Аксон'', ресторан быстрого питания ''Вкусно и точка'', многофункциональный спортивный комплекс ''Локомотив'' со стадионом, Храм Благоверного Великого князя Ярослава Мудрого.
Продаётся 1-комнатная квартира в строящемся доме (Строение 3), срок сдачи: III-кв. 2028, общей площадью 47.4 кв.м., на 2 этаже. ЖК ''Полёт'' расположен в новом, стремительно развивающемся микрорайоне ''Сокол'' с хорошей транспортной и развитой социальной инфраструктурой в 5-минутной пешей доступности от проспекта Фрунзе. В пешей доступности находятся: 4 детских сада, 1 школа, супермаркеты ''Адмирал'' и ''Пятерочка'', ТЦ ''Фреш'', гипермаркет ''Metro Cash and Carry'', ТД ''Аксон'', ресторан быстрого питания ''Вкусно и точка'', многофункциональный спортивный комплекс ''Локомотив'' со стадионом, Храм Благоверного Великого князя Ярослава Мудрого. Кроме этого, в 5-минутной транспортной доступности: 1 школа, 2 детских сада, детская поликлиника, гипермаркет ''Лента'', отделение ''Сбера'', отделение ''Почта России'', аквапарк ''Тропический остров'', парк ''Судостроителей'' и прочее. ЖК ''Полёт'' расположен между двумя остановками общественного транспорта на проспекте Фрунзе: ''Поселок Сокол'' (около 400 м от ЖК) и ''Чернопрудая'' (около 700 м от ЖК).