Если цена в объявлении изменится, мы сразу сообщим вам об этом на электронную почту.
Нажимая «Подписаться», вы соглашаетесь с правилами.
продам коттедж, Климовское7 100 000 ₽
1 фев
Дата публикации объявления
Обн. 25 апр
Дата обновления объявления
1
Количество просмотров (+ просмотры за сегодня)
61 419 ₽/м²
Чистая продажа
Термин "Чистая продажа" означает, что в квартире никто не прописан или
есть куда выписаться и вывезти вещи. Это лучший вариант для покупателя.
Вероятность срыва сделки минимальна.
Этажей2
Площадь участка10 соток
Общая площадь115,6 м2
ЭлектричествоЕсть
Газоснабжениецентральное
СОБСТВЕННИК!!! ДОМ УЖЕ ПОСТРОЕН!
Дом построен в 2025 году, все документы готовы к переоформлению!
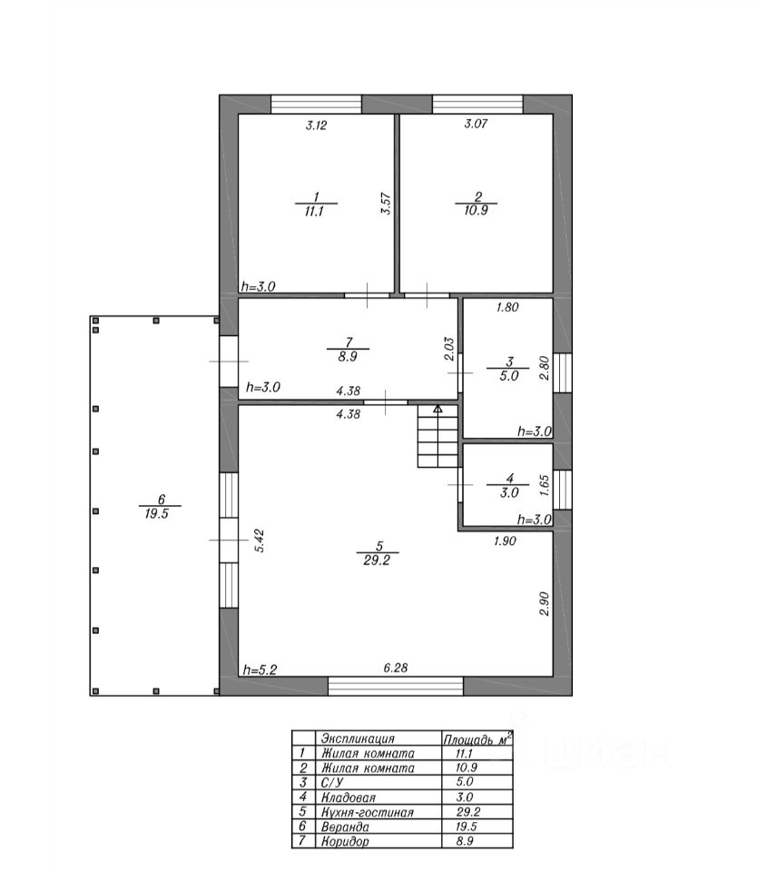
В продаже качественный дом общей площадью застройки 115.4KB/м. Расположенный в деревне Климовское.
Планировка: 2 спальни по 11кВ/м, просторная гостиная с двумя панорамными окнами и вторым светом 29кВ/м, комната на втором этаже 22кВ/м, Санузел 5кВ/м, котельная 3кВ/м, терраса 19.5кВ/м.
До города 10 мин на автомобиле. Ходят автобусы 6 раз в день, от остановки до дома 5 минут пешком.
Участок 10 соток. Ровный, прямоугольный, плодородный грунт.
Рядом располагаются Климовске озера. Спортивный комплекс Подолино, с горнолыжным склоном, и множеством развлечений для любителей здорового отдыха.
СОБСТВЕННИК!!! ДОМ УЖЕ ПОСТРОЕН!
Дом построен в 2025 году, все документы готовы к переоформлению!
В продаже качественный дом общей площадью застройки 115.4KB/м. Расположенный в деревне Климовское.
Планировка: 2 спальни по 11кВ/м, просторная гостиная с двумя панорамными окнами и вторым светом 29кВ/м, комната на втором этаже 22кВ/м, Санузел 5кВ/м, котельная 3кВ/м, терраса 19.5кВ/м.
До города 10 мин на автомобиле. Ходят автобусы 6 раз в день, от остановки до дома 5 минут пешком.
Участок 10 соток. Ровный, прямоугольный, плодородный грунт.
Рядом располагаются Климовске озера. Спортивный комплекс Подолино, с горнолыжным склоном, и множеством развлечений для любителей здорового отдыха. В 5 минутах езды магазин Магнит, Аптека и WB. По близости в д.Ананино есть школа и садик.
Дом построен из газобетонных блоков, толщиной 375мм и плотностью D500 (теплый и энергоэффективный).
Кровля в двухскатном исполнении. Материал - металлочерепица толщиной 0.5мм (графит).
Окна и дверь от завода Рехау, толщина профиля 72мм, тройной стеклопакет 40мм, качественная фурнитура.