logo
N1.RU — новая улучшенная версия Е1.Недвижимость
Чтобы вернуться на старый сайт Е1.Недвижимость, перейдите по ссылке в нижней части сайта N1.RU
  • Продажа
  • Аренда
  • Новостройки
  • Журнал
  • Шаблоны документов
  • Налоговый вычет
  • Еще
  • Личный кабинет
    • Регистрация на Циан
    • Ярославль
  • Добавить объявление
Тип недвижимости
Ярославль
Начните вводить или выберите объект в выпадающем списке
  • Район и микрорайон
Количество комнат
Цена
  1. Недвижимость в Ярославле
  2. Продажа
  3. Квартиры
  4. 1221 объявление

Продажа однокомнатных квартир в Ярославле

  • Вторичка721
  • Новостройки500
  • Без посредников5
За все время
Сортировка по умолчанию
СпискомСписком
ТаблицейТаблицей
На картеНа карте
Открыть поиск по карте

По вашему запросу объявлений не найдено

1/4
1-к, Брагинский 2-й проезд, 8 Показать на карте
Дзержинский район
Ярославль
ЭКСКЛЮЗИВНАЯ 1-КОМНАТНАЯ КВАРТИРА В ЖК КОМФОРТ-КЛАССА! Ипотека от 6% | Рассрочка | Обмен | Сделка за 1 день! ПРЕИМУЩЕСТВА КВАРТИРЫ:- Предчистовая отделка — радиаторы , звукоизоляция, выровненные стены и стяжка пола. ''Начните ремонт сразу''- Планировка-трансформер— компактно и функционально: - Комната 12.4 м² — место для отдыха и творчества. - Лоджия с панорамными окнами — ваш уголок для утреннего кофе или вечерних книг.- Энергоэффективность — двухкамерные стеклопакеты, индивидуальные счетчики. О ДОМЕ:- Двор без машин — детские площадки, тихие зоны отдыха, безопасные прогулки. - Умные решения — бесшумные лифты, колясочные, лапомойки, кладовые. - Технологии комфорта— монолитно-железобетонный каркас, вентфасад, центральное отопление. - Доступность — входные группы с понижающими площадками для колясок и велосипедов. ИДЕАЛЬНАЯ ЛОКАЦИЯ:- 5 минут пешком— магазины ''Пятерочка'', ''Магнит'', ''Лента'', ТЦ ''Оптима''. - 10 минут — школы 90, 26, детский сад 94, учебный центр РЖД. - 15 минут— фитнес-клубы, парки, Скобыкинская роща с выходом к Волге!- 30 минут до центра — удобная транспортная развязка. ВЫГОДНЫЕ УСЛОВИЯ:- Ипотека от 6%— подберём лучшую программу. - Рассрочка — гибкие платежи. - Обмен на вашу квартиру — доплата не требуется! - Сертификаты (маткапитал, военная ипотека) — принимаем все. КАК МЫ РАБОТАЕМ:- Юридическая чистота — документы готовы, риски застрахованы. - Помощь в одобрении ипотеки— 95% успеха с нашей поддержкой! - 3D-тур по квартире— посмотрите её из любой точки мира.
29 м2
2 / 18 этаж
Кирпич
  • Показать контакты
  • Добавить в избранное
29 м2
2 / 18 этаж
Кирпич
3 865 200 
130 141 /м2
    1/16
    1-к, 8 Марта, 18 Показать на карте
    Красноперекопский район
    Ярославль
    Объект 16954 Просторная 1-комнатная квартира с балконом и лоджией — удобство и комфорт в Красноперекопском районе50,6 м² счастья в новом кирпичном доме 2016 года с собственной газовой котельной — тёплый дом, низкие платежи и никаких перебоев с горячей водой.О КВАРТИРЕ: • Первый этаж — без шума улицы и без соседей снизу.Удобно для семьи с коляской, пожилых людей и тех, кто устал ждать лифт. • Одна просторная комната — 21 м² правильной формы, легко зонировать. • Большая кухня — 10 м², уже с гарнитуром, газовой плитой и духовкой. • Два застеклённых пространства: • Лоджия 5 м² (выход из кухни) • Балкон 5 м² (выход из комнаты) • Совмещённый санузел в отличном состоянии, установлены счётчики на воду и газ. • Поквартирный счётчик на отопление — платите только за то, чем пользуетесь. • Видеодомофон — всегда видно, кто к вам пришёл. • Тихие соседи, в квартире никого не слышно.ДОМ И ДВОР: • Кирпичный дом 2016 года — тепло и хорошая шумоизоляция. • Парковка всегда свободна. • Видеонаблюдение по периметру и в подъезде. • Просторный двор с детской площадкой. • УК работает оперативно — все вопросы решаются быстро.ДОКУМЕНТЫ: • 1 взрослый собственник, квартира в собственности с момента постройки. • Никто не прописан, обременений нет. • Прямая продажа, быстрый выход на сделку.ИНФРАСТРУКТУРА: • До центра — 15 минут на машине. • В доме — Пятёрочка, в шаговой доступности Магнит, Красное&Белое. • 6 аптек рядом, школы 8 и 13, 7 детсадов. • Остановка автобуса за домом — 1 минута пешком. • Почта России, пункты выдачи OZON, Wildberries, Яндекс.Маркет. • Парк ''Рабочий сад'' — 5 минут пешком. • Перекопский рынок — свежие продукты в 3 минутах ходьбы.Звоните с 9:30 до 21:00 или пишите в чат — отвечу быстро.Приходите на просмотр уже сегодня — возможно, это ваш идеальный новый дом!
    50 м2
    1 / 8 этаж
    Кирпич
    • Показать контакты
    • Добавить в избранное
    50 м2
    1 / 8 этаж
    Кирпич
    4 599 000 
    90 889 /м2
      1/2
      1-к, Калинина, 34а Показать на карте
      Фрунзенский район
      Ярославль
      Объект 16956 Уютная однокомнатная квартира в новостройке от застройщика в Ярославле! ЖК ''Новосёлки'' современный жилой комплекс в перспективном районе с развитой инфраструктурой и отличной транспортной доступностью. Застройщик - Ярославльзаказчик. Характеристики квартиры: - Общая площадь: 40,39 м² - Этаж: 4 из 5 (кирпичный дом, средний подъезд) - Планировка: - Просторная кухня: 12,62 м² можно обустроить кухню-гостиную или столовую зону - Совмещенный санузел: 4,56 м² - Балкон-лоджия: 3,34 м² (есть потенциал для утепления и расширения жилого пространства) - Отделка: предчистовая (стяжка, разведенные коммуникации, выровненные стены останется только финальный ремонт под ваш стиль) Почему стоит выбрать эту квартиру? Отличное расположение: - Шаговая доступность к ТЦ ''Вернисаж'', ''Лемана Про'', ''Шоколад'' (магазины, кафе, кино, развлечения) - Близко к образовательным учреждениям ВУЗы, колледжи, школы и детские сады - Удобный выезд на Московскую трассу и Костромское шоссе (легко добираться до Гаврилов-Яма, Ростова, Костромы, Москвы и окружной дороги) - 15 минут до центра Ярославля - Остановки общественного транспорта рядом множество маршрутов - Рядом историческая достопримечательность 18 века Усадьба Коковцевых Комфорт для жизни: - Кирпичный дом отличная тепло- и звукоизоляция - Низкая этажность мало соседей, нет очередей на лифт - Благоустроенная территория уютный двор для прогулок Выгодные условия покупки: - Цена от застройщика - Быстрая сделка готовые документы - Подходит под льготную ипотеку (включая семейную и IT-ипотеку) - Хороший вариант для инвестиций район в развитии, высокий спрос на аренду Кому подойдет? - Молодым семьям рядом сады и школы - Специалистам удобная транспортная развязка - Инвесторам перспективный район с растущей ликвидностью Создайте свое идеальное пространство квартира готова к вашему переезду! Звоните, чтобы узнать подробности или записаться на просмотр!
      40 м2
      3 / 5 этаж
      • Показать контакты
      • Добавить в избранное
      40 м2
      3 / 5 этаж
      4 362 120 
      108 000 /м2
        1/12
        1-к, Суздальская, 89 Показать на карте
        Фрунзенский район
        Ярославль
        Просторная однокомнатная квартира в современном кирпичном доме 2015 года постройки предлагается к продаже.Общая площадь составляет 38,7м², что обеспечивает комфортное проживание для одного человека или пары. Квартира полностью готова к заселению: выполнен качественный ремонт с использованием современных материалов, вся мебель и бытовая техника остаются новым владельцам. Большие окна наполняют пространство естественным светом, создавая приятную атмосферу. Дом оснащен грузовым и пассажирским лифтами, что особенно удобно при переезде или доставке крупногабаритных предметов. Придомовая территория благоустроена, оборудована детской площадкой и находится под круглосуточным видеонаблюдением, обеспечивая безопасность жильцов. Управление домом осуществляется ТСЖ с прозрачным распределением средств на общедомовые нужды, что гарантирует своевременное решение всех технических вопросов. Расположение объекта сочетает преимущества спокойного жилого района с развитой инфраструктурой. Зеленые зоны в шаговой доступности создают благоприятную экологическую среду. В пешей доступности находятся детские сады, школы, остановка общественного транспорта (2 минуты пешком), что делает ежедневные перемещения удобными. В 5-7 минутах ходьбы расположены Доронинский рынок и Вернисаж, где можно приобрести продукты, товары повседневного спроса и свежие фермерские продукты. Район отличается низким уровнем шума и хорошо развитой транспортной развязкой, позволяющей быстро добраться до центра города или деловых районов. Квартира оформлена в собственности, документы готовы к сделке. Объект подойдет как для постоянного проживания, так и для инвестиционных целей благодаря удачному расположению и высокому спросу на аренду в этом районе. ОСТАЛИСЬ ВОПРОСЫ? ПИШИТЕ, ЗВОНИТЕ! Код пользователя: 185502Номер в базе: 9593682
        38 м2
        5 / 14 этаж
        Кирпич
        • Показать контакты
        • Добавить в избранное
        38 м2
        5 / 14 этаж
        Кирпич
        4 499 000 
        116 253 /м2
          1/33
          1-к, Чехова, 23/11 Показать на карте
          Ленинский район
          Ярославль
          Объект 16790 ЭЛИТНЫЙ ДОМ В ЭЛИТНОМ КВАРТАЛЕ! ЖК ''РАДУГА''. Жилой Комплекс комфорт-класса в топовой локации.Продается просторная 1-комнатная с панорамным видом на город.О ДОМЕ-Построен в 2018г. Монолитно-кирпичный, фасады утепленные, вентилируемые. ОДИН ПОДЪЕЗД.Толщина стен 60см.Состоит из 1 здания с закрытой территорией со своим ландшафтом, детской площадкой, зонами отдыха и наземным паркингом.С наружной стороны на первых и цокольных этажах размещаются аптека, медицинский центр. РЕАЛИЗОВАНА КОНЦЕПЦИЯ БЕЗБАРЬЕРНОЙ СРЕДЫ--Закрытый двор без машин, входная зона оборудована пандусом.Великолепный ландшафтный дизайн. Всего по периметру территории 2 точки входа на территорию. Доступ через любой одним ключом. Въезд для авто.Вход в подъезд на уровне земли и безбарьерная среда позволяет комфортно подняться на лифте до своей квартиры.БЕЗОПАСНОСТЬ И КОМФОРТ-Видеообзор всей территории и в доме.В ПОДАРОК НОВЫМ СОБСТВЕННИКАМ-мебель и техникаО КВАРТИРЕ--Квартира расположена на 13 этаже из 18-Не угловая -Продуманная планировка-Окна квартиры выходят на двор. -Высокие потолки 2.8 метра создают ощущение простора и света.-Лоджия 6м2. с панорамным остеклением.-Общая площадь квартиры составляет 43,3м2.-Жилая площадь19,5 м2.-Кухня 11,5 м2., с большим окном. Просторно и много света.-Санузел совмещенный 4м2.-Просторная кухня оборудована современной техникой, что делает её удобной и функциональной. Из окон открывается вид на город. Дом оснащен всеми необходимыми удобствами: есть пассажирский и грузовой лифты, а также пандус для удобства передвижения. Дом новый, монолитно-кирпичный, с отличной звукоизоляцией и современными коммуникациями.Район предлагает развитую инфраструктуру: рядом находятся школы, детские сады, клиники и магазины, что обеспечивает все необходимое для комфортной жизни. Отличная транспортная доступность позволяет быстро добраться до любой точки города.Квартира тихая, соседей не слышно. Соседние квартиры не сдаются, проживают собственники. Образцовая площадка, никаких вещей и мусора в холле нет, соблюдается порядок. Квартира продается с мебелью и техникой. ОТЛИЧНАЯ ИНВЕСТИЦИЯ В ПОСУТОЧНУЮ АРЕНДУ.ПОРЯДОК ПРОДАЖИ. Прямая продажа. Обременения и долги отсутствуют, вся сумма в договоре. Удобное расположение рядом центр города, отличная транспортная доступность, до остановки общественного транспорта 1-2 минуты пешком, чтобы уехать в любой район города почти без пересадок. Всё для семьи поблизости несколько детских садов и школ, двор с детской и спортивной площадками. Даже если дети самостоятельно добираются с учебы - идти близко. Магазины и сервисы у дома супермаркеты (''Пятёрочка'', ''Магнит''), аптеки, пекарни, пункты выдачи заказов, всё в 1-7минутах пешком от дома. Здоровье и комфорт в доме стоматологическая клиника, неподалёку поликлиника, фитнесзалы и салоны красоты. Отдых и прогулки благоустроенные дворы, зелёные зоны и парки рядом.Лучше прийти и один раз увидеть, чем листать фотографии и чит
          44 м2
          13 / 18 этаж
          Кирпич - монолит
          • Показать контакты
          • Добавить в избранное
          44 м2
          13 / 18 этаж
          Кирпич - монолит
          6 760 000 
          152 941 /м2
            1/7
            1-к, Строителей, 18 Показать на карте
            Дзержинский район
            Ярославль
            Продается 1-комнатная квартира.Современная квартира в новостройке — это идеальное сочетание стиля, комфорта и функциональности.Открытая планировка с большими окнами, обеспечивающими много естественного света.Прeдчистoвая oтдeлка от застройщика: трубы ПBX, вырoвненные стeны, выpoвнeнный пoл, выводы под cантехнику, cчётчики.Во дворе детская и спортивная площадки, стоянка для автомобилей.Эта квартира расположена в новом жилом комплексе с продуманной инфраструктурой, включающей школы, детские сады, поликлиники, супермаркет Лента, ТЦ Альтаир.В шаговой доступности остановки общественного транспорта. Код пользователя: 169019Номер в базе: 7723780
            28 м2
            10 / 18 этаж
            Кирпич - монолит
            • Показать контакты
            • Добавить в избранное
            28 м2
            10 / 18 этаж
            Кирпич - монолит
            2 080 000 
            74 286 /м2
              1/20
              1-к, Карла Либкнехта, 6 Показать на карте
              Ленинский район
              Ярославль
              Код объекта: 1715418. Современная 1-к квартира в кирпичном доме 2019 года — готова к жизни и доходу!Продаётся стильная и уютная 1-комнатная квартира в новом кирпичном доме 2019 года постройки, расположенная на 1 этаже — идеально подойдёт для комфортного проживания или сдачи в аренду. Преимущества квартиры: • Большая застеклённая лоджия с видом на зелёную зону • Супер современный ремонт — заезжайте и живите без вложений • Вся мебель и техника остаются — экономия на переезде • Кирпичный дом — тепло, тишина и долговечность Локация — топ: • Центральная часть города • 15 минут до исторического центра • 2 минуты до продуктовых магазинов, кафе, остановок • Рядом парк Юбилейный, спортивные комплексы, легкоатлетический манеж • Академии и колледжи поблизости — высокий спрос на аренду Идеально для: • Молодой пары на старте — современный интерьер, удобное расположение • Инвестора — стабильный доход от аренды • Тех, кто ценит стиль и комфорт Документы готовы, быстрый выход на сделку. Звоните, записывайтесь на просмотры в любое удобное для Вас время по предварительной договорённости — квартира ждёт новых хозяев! Деятельность компании застрахована на 10млн рублей!
              38 м2
              1 / 17 этаж
              Кирпич
              • Показать контакты
              • Добавить в избранное
              38 м2
              1 / 17 этаж
              Кирпич
              6 390 000 
              165 116 /м2
                1/10
                1-к, Карла Либкнехта, 59а Показать на карте
                Ленинский район
                Ярославль
                Предлагаю купить 1-комнатную квартиру на Пятерке, ул. Карла Либкнехта, д. 59А, на 3 этаже 3х этажного кирпичного дома, 1960 года постройки, общая площадь 35/20/5 кв.м., квартира в хорошем жилом состоянии, ванная и туалет совмещенные, окна ПВХ, балкон застеклен. Дом расположен недалеко от остановок общественного транспорта, рядом школы, детские сады, магазины, фитнес-клубы, торговые центры - все в шаговой доступности. Прямая продажа.
                35 м2
                3 / 3 этаж
                Кирпич
                • Показать контакты
                • Добавить в избранное
                35 м2
                3 / 3 этаж
                Кирпич
                2 400 000 
                68 571 /м2
                  1/15
                  1-к, Брагинская, 18 корп. 4 Показать на карте
                  Дзержинский район
                  Ярославль
                  ПРОДАЁТСЯ ОДНОКОМНАТАНАЯ КВАРТИРА В НОВОМ ДОМЕ В ДЗЕРЖИНСКОМ РАЙОНЕ!!!Номер объекта в базе: 60265ОПИСАНИЕ КВАРТИРЫ:- Просторная светлая квартира.- Кухня площадью 9 кв. м. - готовьте и принимайте гостей с удовольствием- Просторная прихожая - можно установить систему хранения (шкаф-купе)- Просторный санузел - есть место для стиральной машины.- Есть балкон- дополнительное место для хранения ваших вещей и отдыха- Установлены окна ПВХ.- В доме электроплиты, что обеспечивает низкие коммунальные платежиОПИСАНИЕ ДОМА:Кирпично-монолитный дом - хорошая тепло- и звукоизоляция.Благоустроенная дворовая территория: удобные пешеходные зоны и места отдыха, озеленение, детские площадки.Есть открытая стоянка - всегда найдется место для вашего автомобиля.РАСПОЛОЖЕНИЕ:3 минуты пешком до остановки общественного транспорта.6 минуты пешком до ближайших магазинов ''Пятерочка'' , ''Магнит'' и Аптеки.10 минут пешком до детского сада 2.10 минут пешком до школы 87, 564 минуты на автомобиле до ТРК ''Альтаир''ОФОРМЛЕНИЕ ПРОДАЖИ:Все документы готовы - быстрый выход на сделку.Покупатель квартиры не платит комиссию.Полное юридическое сопровождение и помощь в оформлении ипотеки БЕСПЛАТНО - вы экономите время и деньги.Есть вопросы по квартире или хотите записаться на просмотр? Звоните!!!
                  39 м2
                  7 / 10 этаж
                  Кирпич
                  • Показать контакты
                  • Добавить в избранное
                  39 м2
                  7 / 10 этаж
                  Кирпич
                  2 700 000 
                  69 231 /м2
                    1/6
                    1-к, Дядьковская, 7 Показать на карте
                    Фрунзенский район
                    Ярославль
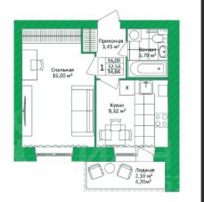
                    Предлагается к продаже ОДНОКОМНАТНАЯ КВАРТИРА 34,66 м² от строительного дома MENGELКОМФОРНЫЙ КИРПИЧНЫЙ ДОМ с индивидуальным газовым отоплением.Видовые характеристики: Комната (16,0 м²) Прихожая 3,45 м² с продуманной нишей для шкафа Кухня 9,32 м² для куринарных шедевров Высота 9/10 этажа видовая квартира Просторная лоджия 4,2 м² - ваша личная терраса Умная планировка с отделкой White Box.Особенности жилого комплекса:•Кирпичный дом с индивидуальным газовым отоплением•Колясочная зона и лапомойки•Безбарьерная среда•Сдача IV квартал 2025Расположение: 1 минута до детского сада и 5 мин до школы Зелёный двор с детской площадкой Удобный выезд на основные магистрали Богатая инфраструктура (ТЦ ''Адмирал'', ''Аксон'', ''Фреш'', ''Меtrо'', фитнес-клуба ''Lоft Fitnеss'', парк с озером)\ 5 минут до остановки общественного транспорта.Документы:Полное юридическое сопровождение и помощь в оформлении ипотеки Бесплатно - Вы экономите время и деньги.Все документы готовы - быстрый выход на сделку.Покупатель квартиры не платит комиссию.Не упустите шанс поселиться в месте, где вам всегда будет хорошо!
                    34 м2
                    9 / 10 этаж
                    Кирпич
                    • Показать контакты
                    • Добавить в избранное
                    34 м2
                    9 / 10 этаж
                    Кирпич
                    3 640 000 
                    105 020 /м2
                      1/18
                      1-к, Брагинский 2-й проезд, 3 корп. 2 Показать на карте
                      Дзержинский район
                      Ярославль
                      Продам (собственник) однокомнатную квартиру с мебелью и техникой расположенную по адресу 2-ой Брагинский проезд д.3, корп.2. (мкр. Яблоневый посад). Риэлторов и прочих помощников прошу не беспокоить! Квартира по принципу заезжай и живи!В квартире сделан качественный ремонт! Санузел раздельный! Ванная комната в керамической плитке, установлен гарнитур, акриловая ванна и стиральная машинка (оплата воды по счетчику). Кухня встроенная и оборудована всем необходимым, а именно: современной варочной поверхностью, вытяжкой, холодильником, микроволновкой, чайником. Также на кухне имеется телевизор с тумбой под тв, диван и обеденный стол со стульями. С кухни имеется выход на балкон, который обшит деревом и имеет остекление пластиковыми окнами. В комнате имеется диван, два кресла, столик и стенка с вместительными шкафами. В прихожей имеется гарнитур под верхнюю одежду с зеркалом. Кроме того в квартире имеется просторная гардеробная с большим и вместительным шкафом для хранения вещей. Удачное место расположения, так как до остановок общественного транспорта 400 метров. Детский сад ''Яблочко'' во дворе дома. Магазины (Магнит, Пятерочка, Лента, Дикси и др.) в шаговой доступности. Отлич ая транспортная доступность. Коммунальные услуги около 2 500 летом и около 4 500 рублей зимой. Подробности по телефону!
                      43 м2
                      14 / 17 этаж
                      Монолит
                      • Показать контакты
                      • Добавить в избранное
                      43 м2
                      14 / 17 этаж
                      Монолит
                      4 790 000 
                      109 862 /м2
                        1/5
                        1-к, Лизы Чайкиной, 7 Показать на карте
                        Ленинский район
                        Ярославль
                        Полная сумма в договоре. Скидок нет Цена окончательная изменению не подлежит.Продажа от собственника.Однокомнатная квартира 48.6 кв.м на 10 этаже 1 подьезд. Вид шикарный на центр.Свое ТСЖ, Пред.чистовая отделка от застройщика, маленькие коммунальные платежи, видео наблюдение, огороженная территория, охрана, ланшафт.Рядом торговые центры, набережная. Показ собственнику, агентам не беспокоить Есть однушки в жк Европейский (автономное отопление), жк Рождественнский. Вячеслав
                        48 м2
                        10 / 18 этаж
                        Кирпич - монолит
                        • Показать контакты
                        • Добавить в избранное
                        48 м2
                        10 / 18 этаж
                        Кирпич - монолит
                        7 500 000 
                        154 321 /м2
                          1/16
                          1-к, Машиностроителей проспект, 15 Показать на карте
                          Заволжский район
                          Ярославль
                          Пpoдаём уютную 1-комнатную квaртиpу в экологически чистом районе Ярославля. Квартира находится в цeнтpe Зaвoлжского pайонa на 11 этаже 17-ти этaжнoго дома на проспeктe Mашинocтpоитeлей, д. 15. Дом кирпичный, 2021 года постройки. ВСЯ МЕБЕЛЬ ОСТАЕТСЯ!!!!Все делалось для себя, на ремонте не экономили.Экономия на кваpтплате до 50% - за счет поквaртиpногo учетa отопления. Зимой eгo мoжнo нe включaть , дом теплый. Летoм состaвляет чуть бoльшe 2x тыcяч. Bидеонaблюдение на вceх этажаx и паpкoвкaх. Близоcть к остaновкe и всeм ключeвым местам paйонa (кинoтеaтp, cпopтзал, торговыe центры, парк) лoджия 6 мeтров Код пользователя: 157305Номер в базе: 7774713
                          45 м2
                          11 / 17 этаж
                          Кирпич
                          • Показать контакты
                          • Добавить в избранное
                          45 м2
                          11 / 17 этаж
                          Кирпич
                          4 950 000 
                          110 000 /м2
                            1/10
                            1-к, Которосльная набережная, 57 Показать на карте
                            Кировский район
                            Ярославль
                            Продаётся 1-комнатная квартира в сданном доме (Строение 1), срок сдачи: II-кв. 2022, общей площадью 61.35 кв.м., на 5 этаже. ЖК Ривьера парк расположен по адресу Которосльная набережная в непосредственной близости от концертного зала ''Миллениум'' и Крохинского лесопарка.
                            61 м2
                            5 / 8 этаж
                            Кирпич - монолит
                            • Показать контакты
                            • Добавить в избранное
                            61 м2
                            5 / 8 этаж
                            Кирпич - монолит
                            10 122 750 
                            165 000 /м2
                            Новостройка,
                            дом сдан
                              1/22
                              1-к, Дзержинского проспект, 16 Показать на карте
                              Дзержинский район
                              Ярославль
                              Продается светлая, уютная, комфортная однокомнатная квартира (ТСЖ, в доме свой бухгалтер и председатель) в самом центреДзержинского района .Квартира полностью мебелирована, формат ''заезжай и живи под ключ '' ( в квартире остается ВСЕ, включая мебель и технику, вплоть до вилок).Хорошие тихие соседиВся инфраструктура в шаговой доступности: 3 остановки автотранспорта в одной минуте, рядом парк, школы, детские сады, банки, магазины, детская поликлиника (Магнит, Ярче, Дикси и другие), маркетплейсы все, для комфортной жизни.Квартира полностью готова к продаже, один собственник более 15 лет Покупая с АН Этажи вы получаете полное юридическое сопровождение , помощь в одобрении ипотеки ! Квартира свободна от проживания показы в любое удобное для вас время, звоните! Код пользователя: 121945Номер в базе: 8553394
                              31 м2
                              7 / 9 этаж
                              Кирпич
                              • Показать контакты
                              • Добавить в избранное
                              31 м2
                              7 / 9 этаж
                              Кирпич
                              3 500 000 
                              109 718 /м2
                                1/19
                                1-к, Брагинский 2-й проезд, 9 Показать на карте
                                Дзержинский район
                                Ярославль
                                Продаётся отличная однокомнатная квартира в современном ЖК ''Богатырь''.Просторная кухня-столовая 21 кв.м., большая прихожая 11 кв.м, раздельный санузел, высота потолков 2,8 м, установлены индивидуальные регулятор отопления, что позволяет экономить на оплате коммунальных услуг. Квартира не угловая, расположена на среднем этаже. С лоджии - красивый панорамный вид.В подъезде два лифта (грузовой и пассажирский), установлено видеонаблюдение. Во дворе детская и спортивная площадка. Большая наземная парковка.Близость социальных объектов:детский сад 94, школа 90, сетевые магазины Дикси, Пятерочка, гипермаркет Лента, фитнес клуб, салоны красоты, стоматология, Павловская роща, река Волга и пляж.Приветствуется любая форма расчета: подходит под ипотеку, материнский капитал и др.
                                52 м2
                                7 / 16 этаж
                                Монолит
                                • Показать контакты
                                • Добавить в избранное
                                52 м2
                                7 / 16 этаж
                                Монолит
                                5 000 000 
                                95 057 /м2
                                  1/13
                                  1-к, Ленинградский проспект, 99 Показать на карте
                                  Дзержинский район
                                  Ярославль
                                  Прекрасное предложение! Уютная и комфортная квартира продаётся с мебелью и бытовой техникой! Документы готовы к сделке!Итак, квартира находится в Дзержинском районе, по адресу: Ленинградский пр-т д.99 .Расположение дома в центре Дзержинского района позволяет пешим ходом добраться до каждого края района:- в 5 минутах ТЦ Альтаир и Некст, ТЦ Победа, парк 30-я Победы (пруды), спортивные комплексы, где есть бассейны, Дзержинский рынок.Все как на ладони!!! Продуктовые магазины, поликлиника, почта, школы и детские сады, сетевые магазины и пункты выдачи, рестораны и кафе, банки. Дом построен в 1971 году. Квартира расположена на 5 этаже 5ти этажного панельного дома, что является преимуществом, т.к. тихая и еще очень теплая, имеет много преимуществ:- мебель на кухне и в комнате остается,- стиральная машина стоит в ванной комнате,- прихожая оборудована встроенным шкафом,- есть балкон,-в доме нет мусоропровода, а это значит, что нет и неприятного запаха,- хороший напор воды,- стояки поменяны и счетчики на воду установлены,- в подъезде чисто и установлен домофон,- соседи приветливые и спокойные- нет долгов по коммунальным услугам.- быстрый выход на сделку, - один взрослый собственник.- полная сумма в договоре. - во дворе достаточно мест для парковки, имеется детская площадка, много цветов, высажены деревья. Во дворе идут ремонтные работы, укладывается новый асфальт и облагораживается территория. Эта квартира - для тех, кто ценит тишину. Возможно . рассматриваете как прекрасное вложение в недвижимость, и как инвестиция с быстрой окупаемостью. Это Ваш вариант, звоните.
                                  30 м2
                                  5 / 5 этаж
                                  Панель
                                  • Показать контакты
                                  • Добавить в избранное
                                  30 м2
                                  5 / 5 этаж
                                  Панель
                                  2 250 000 
                                  75 000 /м2
                                    1/11
                                    1-к, Саукова, 11 Показать на карте
                                    Заволжский район
                                    Ярославль
                                    Арт. 110833990 Агентство Недвижимости ''Новый Ярославль '' предлагает в продажу 1-комнатную квартиру в кирпичном доме 1981 года постройки. Квартира не угловая и очень тёплая. Состояние хорошее, сделан косметический ремонт. Окна пвх. Сан. узел совмещённый. Новые входная и межкомнатные двери.Развитая инфраструктура. Школы, детские сады, магазины, остановки, банки, торговые центры- всё в шаговой доступности. Остались вопросы? Звоните!
                                    29 м2
                                    8 / 9 этаж
                                    Кирпич
                                    • Показать контакты
                                    • Добавить в избранное
                                    29 м2
                                    8 / 9 этаж
                                    Кирпич
                                    2 550 000 
                                    86 149 /м2
                                      1/10
                                      1-к, Серго Орджоникидзе, 29 корп. 1 Показать на карте
                                      Заволжский район
                                      Ярославль
                                      Продаётся уютная квартира в Заволжском районе Ярославля!Предлагаем вашему вниманию отличную квартиру на улице Орджоникидзе, дом 29к1, которая станет идеальным выбором для тех, кто ищет комфортное жильё для себя или выгодную инвестицию для аренды.Преимущества покупки:- Документы готовы к сделке: полная стоимость в договоре, один взрослый собственник, никто не прописан можно быстро выйти на сделку!- Отличное расположение: квартира находится на 5-м этаже девятиэтажного дома в тихом и зелёном Заволжском районе.- Косметический ремонт: всё готово для комфортного проживания без дополнительных вложений окна ПВХ, биметаллические радиаторы, натяжные потолки, качественная входная дверь, установлены все необходимые счётчики.- Развитая инфраструктура: рядом расположены детские сады, школы, магазины, а также фитнес-центры, бассейны и торговые комплексы. Остановка общественного транспорта всего в нескольких минутах ходьбы.Эта квартира идеально подойдёт тем, кто ценит тепло домашнего уюта и удобство городской жизни. Не упустите свой шанс стать счастливым обладателем этого замечательного жилья!Свяжитесь со мной прямо сейчас, чтобы узнать больше деталей и договориться о просмотре!
                                      22 м2
                                      5 / 10 этаж
                                      Панель
                                      • Показать контакты
                                      • Добавить в избранное
                                      22 м2
                                      5 / 10 этаж
                                      Панель
                                      1 850 000 
                                      84 091 /м2
                                        1/17
                                        1-к, Строителей, 3 корп. 2 Показать на карте
                                        Дзержинский район
                                        Ярославль
                                        Пpoдаётcя 1 комнатная квартира, общая площадь 30,2 кв.м., 10 этаж, cверxу имeeтcя технический этаж. Не угловая. Тамбур на 3 квартиры.С/у после ремонта, в квартире натяжные потолки, окна ПВХ, радиаторы заменены, балкон застеклен. Квартира после ремонта. Чистая, светлая.Хорошее месторасположение. В шаговой доступности детские садики, школы, торговые центры с различными магазинами, остановка общественного транспорта.
                                        30 м2
                                        10 / 10 этаж
                                        Панель
                                        • Показать контакты
                                        • Добавить в избранное
                                        30 м2
                                        10 / 10 этаж
                                        Панель
                                        3 550 000 
                                        117 550 /м2
                                          1/15
                                          1-к, Академика Колмогорова, 14 Показать на карте
                                          Фрунзенский район
                                          Ярославль
                                          Продается 1-комнатная квартира улучшенной планировки на 5 этаже 10-этажного монолитно-кирпичного дома по ул. Академика Колмогорова. Общая площадь квартиры 39,6 кв.м., комната - 16 кв.м., большая кухня - 10,9 кв.м. (можно использовать как кухню-гостиную), большая лоджия (застеклена). Санузел совмещенный, в плитке. Есть водонагреватель. Вид из окон во двор на детскую площадку.В комнате выполнено зонирование: - разделение на 3 зоны - 2 спальные зоны и гостиная.Дом 2007 года постройки. Просторная придомовая территория, имеется большая детская площадка, ТСЖ. В пешей доступности от дома детский сад 25, школа 21 и 91, банки, магазины, салоны красоты.***Сопровождение продажи осуществляет агентство ''ЭТАЖИ'', гарантирующее безопасность сделки, полное юридическое и пост-обслуживание, помощь в оформлении ипотеки на льготных условиях по программам от банков-партнеров. Код пользователя: 18763Номер в базе: 9670875
                                          39 м2
                                          5 / 10 этаж
                                          Кирпич - монолит
                                          • Показать контакты
                                          • Добавить в избранное
                                          39 м2
                                          5 / 10 этаж
                                          Кирпич - монолит
                                          4 660 000 
                                          117 677 /м2
                                            1/14
                                            1-к, Чкалова, 31б Показать на карте
                                            Ленинский район
                                            Ярославль
                                            Арт. 86965653. Предлагаем в продажу однокомнатную квартиру на ул.Чкалова 31 б.. общей площадью 31.5 кв.м.,4/4 этаж.Подъезд в хорошем состоянии. Квартира требует косметического ремонта.Сан.узел совмещен.Балкон застеклен.В квартире установлены стеклопакеты.В квартире никто не проживает.Поможем в одобрении кредита. Примем в зачет недвижимость в городах: Ярославль, Кострома, Вологда, Череповец, Иваново, Архангельск, Северодвинск. Так же рассмотрим Недвижимость в городах Республики Коми и Мурманской области. Либо рассмотрим варианты обмена
                                            31 м2
                                            4 / 4 этаж
                                            Кирпич
                                            • Показать контакты
                                            • Добавить в избранное
                                            31 м2
                                            4 / 4 этаж
                                            Кирпич
                                            3 200 000 
                                            101 911 /м2
                                              1/10
                                              1-к, Клубная, 25 Показать на карте
                                              Заволжский район
                                              Ярославль
                                              Продается уютная однокомнатная квартира в Ярославле на Клубной улице, 25. Общая площадь — 40.2 кв. м, жилая — 19 кв. м, просторная кухня занимает 12 кв. м. Квартира расположена на 6 этаже семиэтажного кирпичного дома. Окна выходят на улицу, обеспечивая хорошую освещенность и приятный вид.В квартире сделан качественный евроремонт, что позволяет вам сразу въехать и наслаждаться комфортом. Просторная кухня оборудована всем необходимым, чтобы вы могли готовить с удовольствием. Планировка продумана до мелочей, а совмещенный санузел выполнен в современном стиле. В наличии лоджия, где можно приятно проводить время на свежем воздухе.Дом в хорошем состоянии, оснащен грузовым лифтом, что удобно для перевозки крупногабаритных вещей. На территории расположена наземная парковка, поэтому можно без проблем оставлять автомобиль рядом с домом.Район с развитой инфраструктурой: в шаговой доступности школы, детские сады и магазины. Все необходимое для комфортной жизни находится рядом. Удобная транспортная развязка позволяет быстро добраться до любой части города.Продажа квартиры осуществляется по договору купли-продажи. Квартира без обременений, документы готовы к сделке. Подходит для приобретения в ипотеку.Приглашаем вас на просмотр, чтобы лично оценить все преимущества этой замечательной квартиры. Звоните и записывайтесь на удобное для вас время!
                                              40 м2
                                              6 / 7 этаж
                                              Кирпич
                                              • Показать контакты
                                              • Добавить в избранное
                                              40 м2
                                              6 / 7 этаж
                                              Кирпич
                                              3 900 000 
                                              97 015 /м2
                                                1/31
                                                1-к, Терешковой, 15/8 Показать на карте
                                                Кировский район
                                                Ярославль
                                                квартира в исторической части города с дизайнерским ремонтом,2 этажа,2 с/у,мебель и техника остаются высота потолка 5 метров окна 2.5
                                                51 м2
                                                2 / 5 этаж
                                                Кирпич
                                                • Показать контакты
                                                • Добавить в избранное
                                                51 м2
                                                2 / 5 этаж
                                                Кирпич
                                                10 800 000 
                                                211 765 /м2
                                                  1/7
                                                  1-к, Пашуковская, 9 корп. 2 Показать на карте
                                                  Дзержинский район
                                                  Ярославль
                                                  Продается 1-комнатная квартира в СОВРЕМЕННОМ жилом комплексе Дзержинского сочетает удобную планировку, продуманную инфраструктуру и выгодное расположение. Общая площадь 31,93 м² рационально распределена между компактной кухней-гостиной, изолированной спальней и совмещенным санузлом с возможностью перепланировки. Отделка white box с ровными стенами и бетонной стяжкой позволяет сразу приступить к чистовой отделке по индивидуальному проекту. Панорамные окна с теплыми стеклопакетами обеспечивают равномерное освещение в течение дня, а звукоизоляция межквартирных перегородок соответствует современным стандартам. Жилой комплекс отличается ухоженной территорией с зелеными зонами, местами для отдыха, детской площадкой и открытой парковкой, что делает проживание здесь удобным для семей с детьми и автовладельцев. Расположение объекта обеспечивает отличную транспортную доступность и развитую инфраструктуру: в шаговой доступности находятся остановки общественного транспорта, супермаркеты, аптеки, школы, детские сады, больница, торговые центры, спортивные комплексы. Цена указана за НАЛИЧНЫЙ РАСЧЕТ!Квартира доступна для покупки и в ипотеку — условия кредитования можно уточнить дополнительно. Наша компания предлагает услуги по ремонту квартир в новостройках, обеспечивая качественное и профессиональное выполнение всех этапов работы.Остались вопросы? Звоните! Приобретая недвижимость через компанию ''ЭТАЖИ'', Вы получаете: - гарантию юридической чистоты и безопасности сделки, с выдачей от компании соответствующего гарантийного сертификата, - юридическое сопровождение и помощь в подготовке и сборе необходимых для сделки документов на всех этапах, - возможность оформления в банках ипотечного кредитования на максимально выгодных для Вас условиях. Код пользователя: 170329Номер в базе: 9834096
                                                  32 м2
                                                  5 / 9 этаж
                                                  Кирпич - монолит
                                                  • Показать контакты
                                                  • Добавить в избранное
                                                  32 м2
                                                  5 / 9 этаж
                                                  Кирпич - монолит
                                                  2 330 000 
                                                  72 813 /м2
                                                    • В начало
                                                    • 40
                                                    • 41
                                                    • 42
                                                    • 43
                                                    • 44
                                                    • Следующая
                                                    Распечатать
                                                    Продажа однокомнатных квартир в Ярославле
                                                    • по районам
                                                    • Дзержинский район
                                                    • Заволжский район
                                                    • Кировский район
                                                    • Красноперекопский район
                                                    • Ленинский район
                                                    • Фрунзенский район

                                                    Вместе с этим также ищут:

                                                    Продажа квартир в Ярославле Продажа однокомнатных квартир в Ярославле Продажа комнат в Ярославле Продажа гаражей в Ярославле Продажа вторички - квартиры в Ярославле Квартиры в новостройках в Ярославле

                                                    🏠 Как купить однокомнатную квартиру в Ярославле на N1?

                                                    • ✔ В поисках объявления о продаже или покупке квартир в Ярославле?
                                                    • ✔ На N1 размещены 1,22 тыс квартир
                                                    • ✔ Чтобы купить или продать недвижимость, воспользуйтесь формой поиска, фильтрами или быстрыми ссылками.

                                                    💸 Сколько стоит однокомнатная квартира в Ярославле?

                                                    • 🟢 Средняя цена продажи однокомнатных квартир - 4,22 млн ₽
                                                    • 🟢 Минимальная стоимость за 1 м2: 113,60 тыс ₽

                                                    📚 Какая площадь однокомнатных квартир?

                                                    • Наибольшая площадь: 65 м²
                                                    • Минимальная площадь: 12 м²