1-к, Пашуковская, 9 корп. 2 Показать на карте
Дзержинский район
Ярославль
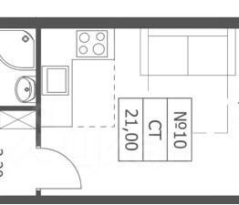
Продается просторная СТУДИЯ площадью 27,13 кв.м. в СОВРЕМЕННОМ ЖИЛОМ КОМПЛЕКСЕ Дзержинского района!Квартира находится в состоянии ПРЕДЧИСТОВОЙ ОТДЕЛКИ, что позволяет будущему владельцу завершить ремонт по индивидуальному проекту. Отделка включает в себя: возведены внутриквартирные перегородки, стены выровнены и отштукатурены, выполнена стяжка пола, разведена электрика с установленными розетками и выключателями, пластиковые окна, установлены современные радиаторы отопления, проведена гидроизоляция санузла, установлены счетчики на горячее и холодное водоснабжение, балкон застеклен. Жилой комплекс отличается благоустроенной территорией с зелеными зонами, детской площадкой и открытой парковкой, создавая комфортную среду для проживания. Расположение объекта обеспечивает отличную транспортную доступность и развитую инфраструктуру: в шаговой доступности находятся остановки общественного транспорта, супермаркеты, аптеки, школы, детские сады, больница, торговые центры, спортивные комплексы. Квартира подходит как для инвестиции, так и для проживания!Цена указана за НАЛИЧНЫЙ РАСЧЕТ!Возможна покупка в ипотеку, условия уточняйте. Дополнительно доступны услуги ПРОФЕССИОНАЛЬНОГО РЕМОНТА ПОД КЛЮЧ, что позволит быстро привести помещение в готовое для заселения состояние. Остались вопросы? Звоните! Приобретая недвижимость через компанию ''ЭТАЖИ'', Вы получаете: - гарантию юридической чистоты и безопасности сделки, с выдачей от компании соответствующего гарантийного сертификата, - юридическое сопровождение и помощь в подготовке и сборе необходимых для сделки документов на всех этапах, - возможность оформления в банках ипотечного кредитования на максимально выгодных для Вас условиях. Код пользователя: 170329Номер в базе: 9834073
27 м2
5 / 9 этаж
Кирпич - монолит
- Показать контакты
- Добавить в избранное
27 м2
5 / 9 этаж
Кирпич - монолит
2 089 000
77 370 /м2
