3-к, Тверицкая набережная, 58а корп. 1 Показать на карте
Заволжский район
Ярославль
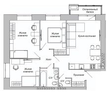
Продается просторная трехкомнатная квартира площадью 93.3 кв. м в новом жилом комплексе на Тверицкой набережной. Боковой вид на Волгу!Возможна Семейная Ипотека!!! Объект сдан в эксплуатацию, полностью готов к заселению и отличается индивидуальной планировкой, обеспечивающей рациональное использование пространства. Ключевым преимуществом является автономная система газового отопления с современным двухконтурным котлом, что гарантирует независимость в регулировании температуры и значительную экономию на коммунальных расходах. Все центральные коммуникации подведены, при строительстве использовались экологически чистые и надежные материалы.Жилой комплекс расположен в шаговой доступности от набережной и городского пляжа, предлагая привлекательные возможности для отдыха и прогулок. Придомовая территория благоустроена, оборудована парковкой и системой круглосуточного видеонаблюдения по периметру для обеспечения безопасности. Инфраструктура района хорошо развита: в непосредственной близости находятся детский сад, школа, аптеки и сетевые магазины. Обеспечена отличная транспортная доступность, позволяющая быстро добраться до любой точки города.Покупка данной квартиры соответствует условиям программы ''Семейная ипотека'' и других видов льготных ипотечных программ.Возможна организация сделки ''под ключ'' с предоставлением сертификата гарантии до 10 млн рублей. Организация просмотра в удобное время! Бесплатная консультация по подбору ипотечных программ и помощь в получении одобрения! Код пользователя: 185276Номер в базе: 9725647
93 м2
1 / 3 этаж
- Показать контакты
- Добавить в избранное
93 м2
1 / 3 этаж
10 250 000
109 673 /м2
Новостройка,
дом сдан
дом сдан
