1-к квартира Показать на карте
Красноперекопский район
Ярославль
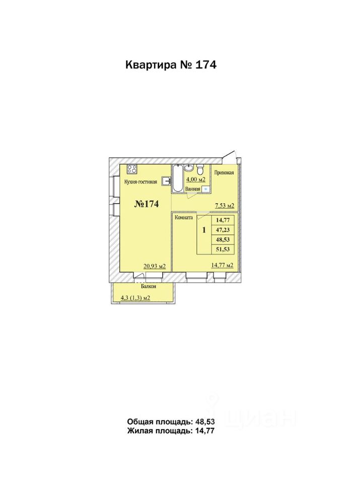
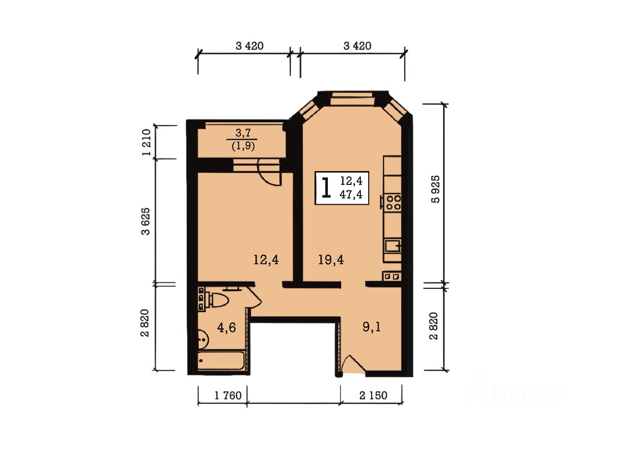
Продаётся 1-комнатная квартира в строящемся доме (Дом 1), срок сдачи: III-кв. 2028, общей площадью 39.91 кв.м., на 8 этаже. Новый жилой комплекс ''Звезда'' от застройщика ''ГК Медик'' расположен по адресу: г. Ярославль, ул. Маланова Комплекс состоит из двух восьмиэтажных кирпичных домов c индивидуальным газовым отоплением.ОтделкаПредчистовая: на полу выполнена стяжка, стены оштукатурены, электропроводка разведена, панорамное остекление балконов. Высота потолков — 2,7 метра.ТерриторияФизкультурные площадки, детские площадки, площадки для отдыха взрослых, хозяйственные площадки и площадки для кратковременной стоянки автотранспорта.ИнфраструктураШколы 13, 32, детские сады 59, 241, педагогический колледж, детская поликлиника, больница им. Н. А. Семашко, сетевые магазины, площадки для выгула собак.Условия покупкиПриобретение квартир проводиться с использованием счетов эскроу согласно Федеральному закону от 30.12.2004 N 214-ФЗ.Полное сопровождение: от выбора квартиры до выхода на сделку.Сдача дома 3 квартал 2028г.
39 м2
8 / 8 этаж
Кирпич
- Показать контакты
- Добавить в избранное
39 м2
8 / 8 этаж
Кирпич
4 789 200
120 000 /м2
Новостройка,
III-2028
III-2028
