1-к квартира Показать на карте
Дзержинский район
Ярославль
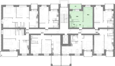
Продаётся 1-комнатная квартира в строящемся доме (Дом 2), срок сдачи: III-кв. 2026, общей площадью 43.38 кв.м., на 4 этаже. 8-и этажный жилой дом располагается по адресу : г. Ярославль, Тутаевское шоссе, д.60, параллельно Тутаевскому шоссе. Дом с несущими стенами из кирпича, с облицовкой керамическим кирпичом. Квартиры обеспечены индивидуальным газовым отоплением и горячим водоснабжением. При планировании участка применена концепция ''двор без машин''.Внутренняя часть двора -благоустроенная территория для занятий спортом, отдыха, игр. В каждой секции дома предусмотрены проходные подъезды, через которые жители дома будут попадать и на дворовую территорию и к дорогам и парковкам, расположенным с внешней стороны. Вход в подъезды с уровня земли. Каждый подъезд дома имеет лифт грузоподъемностью 630 кг. При разработке планировок квартир применяется зарекомендовавшая себя на практике концепция квартиры с большой комнатой, включающей в себя зоны гостиной, кухни и столовой. Эта комната является своеобразным аналогом общественного пространства для членов семьи. Спальни и детские комнаты запроектированы меньшего размера, но с полным учетом всех необходимых функциональных зон и сценариев. Таким образом в каждой, даже однокомнатной квартире есть обособленные дневное общественное и ночное приватное пространства. В цокольном этаже дома будут устроены кладовые помещения для хранения площадью от 5 до 15 кв.м. Попасть в кладовую можно из подъезда. Кладовые предназначены для хранения крупногабаритных вещей: автомобильных покрышек, лыж, санок, велосипедов, детских колясок. Собственная кладовая поможет вам разгрузить вашу квартиру от сезонных вещей, и использовать лоджию и свободное пространство квартиры для уютного отдыха , а не для хранения крупногабаритных вещей. На фасадах домов будут смонтированы короба для установки наружных блоков кондиционеров.
43 м2
4 / 16 этаж
Кирпич
- Показать контакты
- Добавить в избранное
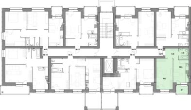
43 м2
4 / 16 этаж
Кирпич
5 639 400
130 000 /м2
Новостройка,
I-2027
I-2027
