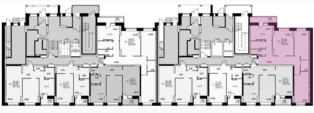
1-к, Клубная, 18 Показать на карте
Заволжский район
Ярославль
СТАРТ ПРОДАЖ НОВОГО ДОМА! Ввод дома 1 квартал 2027 г. Квартира в полной предчистовой отделке Whitе Вох, полностью готовая для выполнения финишной отделки - оштукатурены, ошпатлеваны стены, на полу стяжка, выполнена разводка электричества, установлены розетки и выключатели, дверь в санузел. Финишную отделку от застройщика можно добавить дополнительно (в объявлении примеры с фото выполненной отделки). Жилой Квартал Боровики - живите без городской суеты! - Ярославская прописка - Всего 15 минут до центра города, рядом с сосновым бором и озером - Дома из керамического кирпича , с толстыми стенами от 640 до 770 мм - Индивидуальное газовое отопление и разводка труб ГВС в пола - прозрачные, распашные балконные двери без сэндвич-панелей добавят ощущение простора и воздуха. - просторный балкон-терраса до 7,0 м2, с теплым остеклением, как дополнительная функциональная зона здесь, например, можно организовать лаундж-зону, рабочее место, домашний спортзал, установить беговую дорожку или цветочную оранжерею. -- очень высокий уровень первого этажа - до начала оконных откосов - 2,38 м! - высота потолков 2,7 м, в квартирах на 4 ЭТАЖЕ - 3м - входные группы с прозрачным остеклением - Смарт-домофоны - Удобные кладовые от 4 до 10 м2 - Видеонаблюдение - Просторные дворы - Интерьер холлов выполнен в современном стиле по специальному дизайн-проекту. Продажа по эскроу-счетам. Надежный застройщик. Группа Компаний Ярстройзаказчик более 17 лет работает на рынке недвижимости Ярославля и зарекомендовала себя в качестве надежного, проверенного застройщика. Сегодня более 2500 семей живут в квартирах жилых комплексов, возведенных ГК Ярстройзаказчик (Застройщик ООО СЗ Строй Капитал).
41 м2
3 / 4 этаж
Кирпич
- Показать контакты
- Добавить в избранное
41 м2
3 / 4 этаж
Кирпич
5 010 000
120 317 /м2
