1-к, Ярославская, 27 корп. 2 Показать на карте
Фрунзенский район
Ярославль
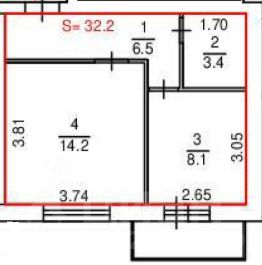
Продается уютная однокомнатная квартира во Фрунзенском районе! - площадь 30,7 м.кв., - кухня 6,5 м.кв., - санузел совмещен, Преимущества квартиры:- Пластиковые окна обеспечивают отличную тепло- и звукоизоляцию.- Современные трубы ПВХ гарантируют надежность и долговечность.- Удобный совмещенный санузел, отделанный кафелем- Газовая колонка — у вас всегда будет горячая вода, даже во время плановых отключений! -По желанию можем оставить часть мебели, что позволит вам сразу же комфортно заселиться. Инфраструктура:• В непосредственной близости находятся детский сад и школа — идеальные условия для семей с детьми.• ДК Судостроитель, гипермаркет Лента, круглосуточная аптека и аквапарк — все это в пешей доступности!• До центра города всего 20 минут — удобно для работы и отдыха!Не упустите шанс стать обладателем этой замечательной квартиры! ЗВОНИТЕ, показ в любое удобное для Вас время!!!Профессиональное сопровождение в режиме одного окна:-консультация по недвижимости, одобрение ипотеки-подбор выгодной страховки-полное юридическое сопровождениеКомпания Этажи - Федеральный оператор недвижимости с 25-летним опытом работы более чем в 260 городах. Код пользователя: 44277Номер в базе: 9876329
30 м2
1 / 5 этаж
Кирпич
- Показать контакты
- Добавить в избранное
30 м2
1 / 5 этаж
Кирпич
2 949 000
96 059 /м2
