1-к, Попова, 11 Показать на карте
Фрунзенский район
Ярославль
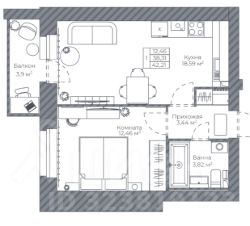
Продаётся не угловая, очень тёплая 1-комнатная квартира (31,5 кв.м) на 1 этаже 5-этажного в панельном доме с газоснабжением. Дом построен в 1989 году. Окна выходят на тихую улицу.В квартире раздельный санузел, что обеспечивает дополнительное удобство.Кухня просторная - 9,3 кв.м, без газовой плиты и раковины, 3x3,1 кв.м.1,5x1,4 =2,1 - ванная комната, 1,1x0,7=0,77 - туалет, 2,1x1,1=2,31 - коридор, 3x1,4 = 4,2 - коридор, комната - 12,25 (3,5x3,5), если демонтировать встроенный шкаф, то 3,5x4,2= 14,7, увеличение на 2,45.В подъезде есть мусоропровод, но он заварен, мусорные контейнеры оборудованы рядом с домом. Тихие и доброжелательные соседи, которых не видно.Открытая парковка во дворе. Двор с детской площадкой и спортивной зоной. Квартира требует ремонта, но это даёт возможность воплотить свои дизайнерские идеи.1 взрослый собственник, более 5 лет в собственности. Свободна от регистрации и проживания.Развитая инфраструктура, рядом поликлиника, больница, ветклиника, школы, детские сады, сетевые магазины, торговый центр, 1 минута ходьбы до остановки общественного транспорта.
31 м2
1 / 5 этаж
Панель
- Показать контакты
- Добавить в избранное
31 м2
1 / 5 этаж
Панель
1 900 000
60 317 /м2
