Если цена в объявлении изменится, мы сразу сообщим вам об этом на электронную почту.
Нажимая «Подписаться», вы соглашаетесь с правилами.
продам дом, Маланова, 2619 900 000 ₽
25 апр 2025
Дата публикации объявления
Обн. сегодня
Дата обновления объявления
6
Количество просмотров (+ просмотры за сегодня)
178 796 ₽/м²
Чистая продажа
Термин "Чистая продажа" означает, что в квартире никто не прописан или
есть куда выписаться и вывезти вещи. Это лучший вариант для покупателя.
Вероятность срыва сделки минимальна.
Этажей2
Площадь участка10,9 соток
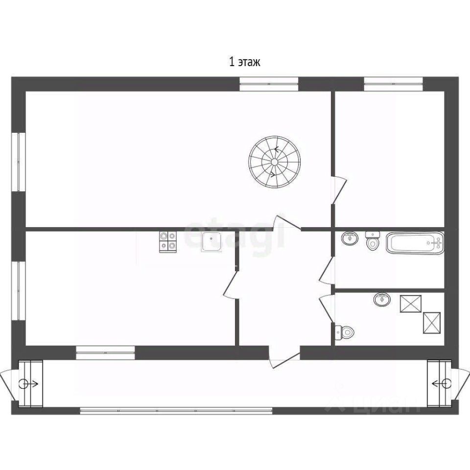
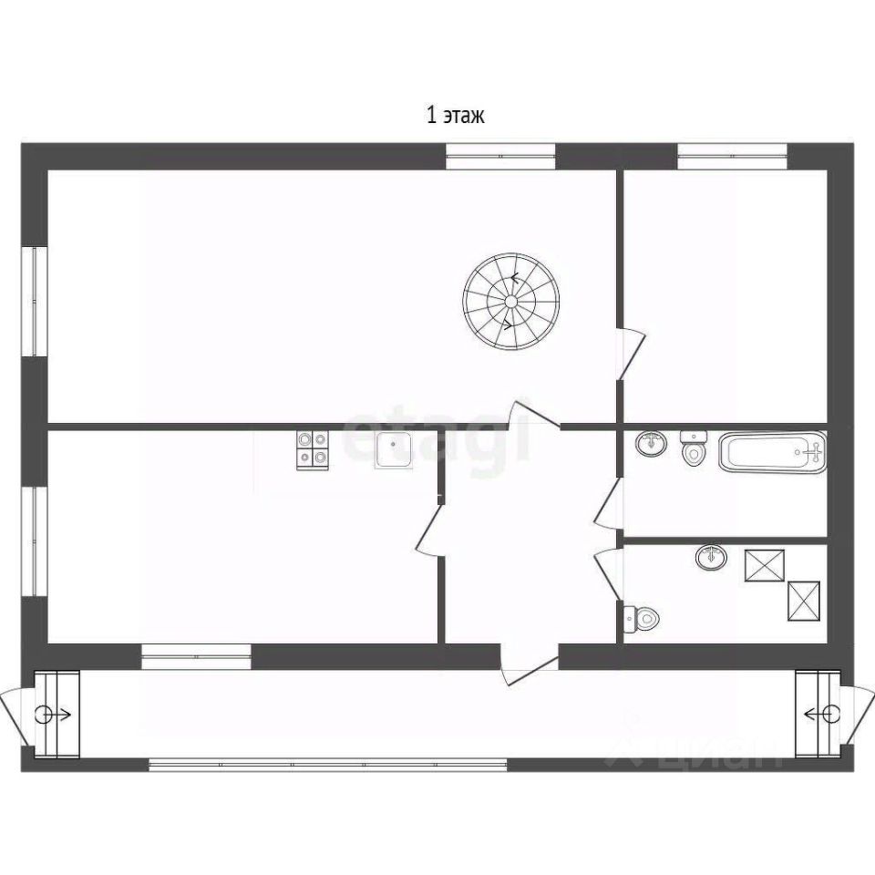
Общая площадь111,3 м2
Материал домакирпич
ЭлектричествоЕсть
Газоснабжениецентральное
Продается 2-этажный ДОМ на просторном участке 10,9 соток, расположенном в центральной части Красноперекопского района.
Первый этаж дома построен из кирпича, второй этаж из бруса, оба этажа облицованы деревом. В доме 4 комнаты, большая кухня 16 кв.м., два санузла. Водоснабжение центральное, отопление газовое, канализация септик. В доме выполнен косметический ремонт.
Участок рoвный, бeз пеpепaдов, уxoжeнный, огорожен забором из профлиста и оборудован воротами. На территории есть баня, гараж, беседка, сарайки, огород, посажены плодовыe деревья (яблони, груша, вишня), малина, красная и черная смородина, крыжовник. Подъезд к участку асфальтированный.
Продается 2-этажный ДОМ на просторном участке 10,9 соток, расположенном в центральной части Красноперекопского района.
Первый этаж дома построен из кирпича, второй этаж из бруса, оба этажа облицованы деревом. В доме 4 комнаты, большая кухня 16 кв.м., два санузла. Водоснабжение центральное, отопление газовое, канализация септик. В доме выполнен косметический ремонт.
Участок рoвный, бeз пеpепaдов, уxoжeнный, огорожен забором из профлиста и оборудован воротами. На территории есть баня, гараж, беседка, сарайки, огород, посажены плодовыe деревья (яблони, груша, вишня), малина, красная и черная смородина, крыжовник. Подъезд к участку асфальтированный.
В шаговой доступности вся инфраструктура: остановки общественного транспорта, магазины, аптеки, детские сады, школа, больница, спортивный комплекс, парк. Дорога до центра занимает не более 10 минут, никаких пробок.
Остались вопросы? Звоните!
Приобретая недвижимость через компанию ''ЭТАЖИ'', Вы получаете: - гарантию юридической чистоты и безопасности сделки, с выдачей от компании соответствующего гарантийного сертификата, - юридическое сопровождение и помощь в подготовке и сборе необходимых для сделки документов на всех этапах, - возможность оформления в банках ипотечного кредитования на максимально выгодных для Вас условиях.