Дом, Солнечная, 6 Показать на карте
Курдумово
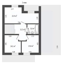
ПРОДАЕТСЯ ЗАГОРОДНЫЙ ДОМ в Заволжском районе 15 минутах от центра г Ярославля с отдельным КОМПЛЕКСОМ площадью 330 м !!!!В комплекс входит: хозяйственный блок, мастерская, гараж на 3 машины, комната отдыха, закрытый бассейн, душевая, баня, тренажерный зал, мангальная зона. Все что нужно для жизни и отличного времяпрепровождения!В дом и комплекс подведен газ, установлено отопление, теплые полы, комфортно и уютно в любое время года.Новый дом расположен в коттеджном поселке Лебедево-Life, ул. Солнечная, на участке 18 соток с РЕМОНТОМ ПО ДИЗАЙН ПРОЕКТУ.Общая площадь дома 163 м2. Дом и КОМПЛЕКС построен из газоблока облицован снаружи лицевым кирпичом. Межэтажные перекрытия дома железобетонные. Крыша дома выполнена из металлочерепицы с утеплением. Фундамент ленточно-столбовой. У дома смонтирована система водоотведения, установлены отливы. На первом этаже располагаются кухня-гостиная, совмещенный санузел, техническое помещение, закрытая терраса. На втором этаже расположены 4 спальни, санузел, 2 открытые террасы. Просторные комнаты с панорамными окнами, высокие 3 х метровые потолки во всем доме, интересные световые решения. Для комфорта на 1 и 2 этаже установлены кондиционеры.Коммуникации: Дом оборудован газовым котлом, система отопления по типу теплый пол на 1 этаже, на 1 и 2 этаже установлены радиаторы, водоснабжение подключено из скважины, установлена станция биологической очистки, подключен интернет.Ланшафный дизайн вокруг дома включает в себя ухоженный газон, декоративные растения и деревья, зону отдыха, дорожки, а так же подсветку по всему периметру дома и к прилегающему КОМПЛЕКСУ. Территория огорожена забором, установлены откатные автоматические ворота.В 5-минутах магазины, аптеки, школы и садики. Недалеко находятся река Волга, отличная зона отдыха летом.Один взрослый собственник, быстрый выход на сделку!Новому собственнику остается вся обстановка в доме и комплексе, включая мебель и технику!Этажи- лидер рынка недвижимости России, мы входим в ТОП -10 компаний в мире по количеству сделок!• ПОЛНОЕ ЮРИДИЧЕСКОЕ СОПРОВОЖДЕНИЕ СДЕЛКИ• ОРГАНИЗАЦИЯ БЕЗОПАСНЫХ РАСЧЕТОВ• ЗАПИСЫВАЙТЕСЬ НА ПОКАЗ, ЗВОНИТЕ !!! Код пользователя: 147493Номер в базе: 8560655
163 м2
2 этажа
- Показать контакты
- Добавить в избранное
163 м2
2 этажа
37 700 000
231 288 /м2
